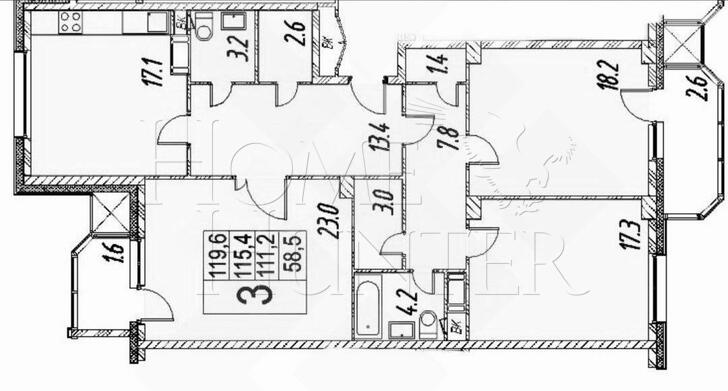
j 58970 ЖК Мосфильмовский. МАШИНОМЕСТО! В продажу предлагается ВИДОВАЯ 3-комнатная квартира БЕЗ ОТДЕЛКИ, свободной планировки. По планировке: 3 комнаты, просторная кухня-столовая, 2 санузла, гардеробные. Строго охраняемая, огороженная территория с концепцией двор без машин. Шикарная собственная инфраструктура ЖК, в комплексе престижная школа, два детских сада, супермаркеты Азбука вкуса и Фрешмаркет, премиальный фитнес-центр с бассейном, салоны красоты, рестораны, кафе, химчистка и многое другое. Рядом с комплексом проходит зелёная излучина реки Раменки. Неподалеку от ЖК расположены легендарные Ботанический сад МГУ и Парк 50-летия Октября. В пешей доступности м. Раменки. Удобная транспортная развязка. Оперативный выход на сделку. Номер в базе: J58970




















































































