Продаётся эксклюзивная квартира с 3-мя спальнями и просторной кухней- гостиной, в премиальном Жилом Комплексе «Городские резиденции SPIRES (Спайрс)». Квартира с шикарным дизайнерским ремонтом и всем необходимым для комфортного проживания - все это остается для Вас! Сделайте себе подарок на Новый год купив эту шикарную квартиру!
Преимущества Вашей будущей квартиры:
— Квартира продается с новым, ремонтом, текстилем, декором, мебелью и техникой! Остается абсолютно все!
— В квартире никто не жил! Ремонт только что завершен!
— Квартира на 2 стороны. Панорамные виды на природный заказник "Долина реки Сетунь" и внутренний двор!
— Жилой комплекс находится в окружении живописной зеленой зоны на берегу р. Сетунь!
О квартире:
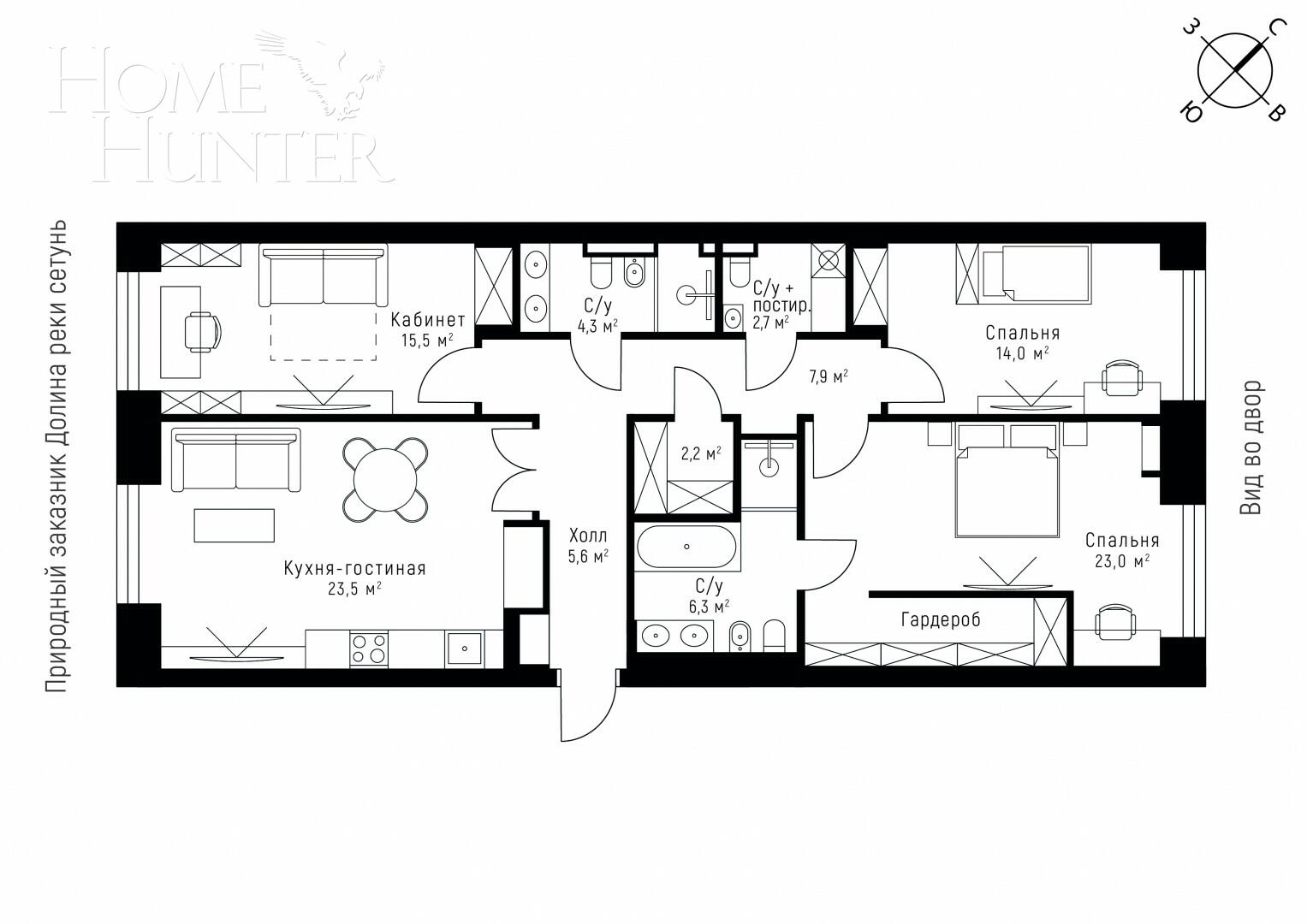
Функциональная планировка: 3 спальни (1 из них мастер-спальня со своей ванной комнатой), 3 санузла, кухня-гостиная. Высота потолков 3,1 метра. С кухни-гостиной и одной из спален открываются панорамные виды на западную сторону с фантастическими закатами и природный заказник "Долина реки Сетунь", а из других двух спален приятный и спокойный вид во внутренний двор и город.
Современный кухонный гарнитур со встроенной техникой (винный- шкаф, холодильная и морозильная камера, индукционная варочная поверхность, духовой шкаф, встроенная микроволновая печь, посудомоечная машина, вытяжка).
Обеденная зона, комфортный диван, телевизор и камин, который позволит Вам собраться в семейном уютном кругу. Уютные спальни - в них двуспальные кровати с подъемным механизмом для хранения вещей. Две прикроватные тумбочки с красивыми светильниками, телевизоры.
2 гардеробные (в прихожей и в мастер- спальне). Современная ТВ станция Yandex Pro со встроенной Алисой, раздвижные шторы с управлением через пульт или через систему умный дом.
Кондиционирование в каждой комнате. Теплые полы в ванной комнате. Установлены стиральная и сушильная машины. Имеются бойлеры в санузле. Система очистки питьевой воды, бесшумная канализация Ostendorf и напольные конвекторы.
В прихожей гардеробная комната с установленными шкафами для хранения вещей, а также со стиральной и сушильной машиной.
О ЖК:
Все здесь продумано до мелочей и создано с любовью для комфортной жизни.
Подземный паркинг на -3 этажа, есть своя автомойка. В продаже кладовые помещения. Закрытая территория, двор без машин. На территории установлено 138 камер видеонаблюдения. Круглосуточная охрана и видеонаблюдение. Консьерж. Во дворе ландшафтный парк с современной детской площадкой.
Инфраструктура:
На первых этажах ЖК, в которых находятся: салон красоты, пекарня «Буханка», супермаркет «Магнолия-24 часа», аптека, винотека, кафе, SPA, цветы.
Рядом ресторан, детская и спортивная площадки. ТЦ «Океания» и «Времена Года», Матвеевский лес. Муниципальные и частные детские сады и школы, больница.
В шаговой доступности 3 ст. метро: «Славянский бульвар», «Минская», «Давыдково».
Компания "Винидиктов и Партнеры" - участник Ассоциации Агентств Элитной Недвижимости AREA!
Арт. 125908808
































































