Арт. 70775525 Вашему вниманию представляется уютный деревянный дом с прекрасным видом на собственный водоём, расположенный в благоустроенном посёлке Живописный, всего в 33 км от МКАД по Рогачёвскому шоссе.
Это замечательное тихое место для жизни и отдыха в окружении лесного массива, где вы сможете насладиться всеми прелестями загородной жизни. Природа здесь максимально близка и доступна, предлагая разнообразные возможности для активного времяпрепровождения и расслабления.
Дом общей площадью 386 кв. м выполнен в два уровня с использованием высококачественных и энергоэффективных материалов. Полностью меблирован и оснащён для комфортного проживания.
Современный экстерьер дома с большими панорамными окнами и вторым светом добавляет ощущение простора и легкости, позволяя вам ежедневно наслаждаться естественным светом и красивым видом на окружающую природу. Стильная архитектура дома органично вписывается в естественный ландшафт, окружённый взрослыми деревьями.
Внутри дома вас ждёт уникальная атмосфера уюта и гармонии. Планировка максимально функциональна и продумана: стильная гостиная с камином и вторым светом, светлая кухня-столовая с выходом на террасу, где вы сможете наслаждаться утренним кофе, любуясь видом на собственный водоём. Дом предоставляет пять просторных спален, каждая из которых оснащена собственным санузлом, обеспечивая максимальный уровень комфорта для всех членов семьи. Дополнительные пространства предлагают возможность организовать кабинет или игровую комнату для детей.
Одной из главных изюминок дома, является зарыбленный пруд, в котором обитает множество видов рыбы, среди них: белый амур, толстолобик, карп, карась (серебряный и золотой), линь и красноперка.
Участок площадью 20,53 сотки окружён вековыми деревьями, благодаря которым создаётся непередаваемая атмосфера уединения и спокойствия. Участок находится в живописной локации, где пение птиц, шорох листьев и свежий воздух — станут вашими постоянными спутниками, создавая неповторимое ощущение загородного уюта.
На территории участка организована просторная площадка для паркинга, сделано освещение, устроены удобные дорожки. При въезде установлены ворота на электроприводе.
Коммуникации: магистральный газ, электричество 15 кВт, центральное водоснабжение, канализация — септик.
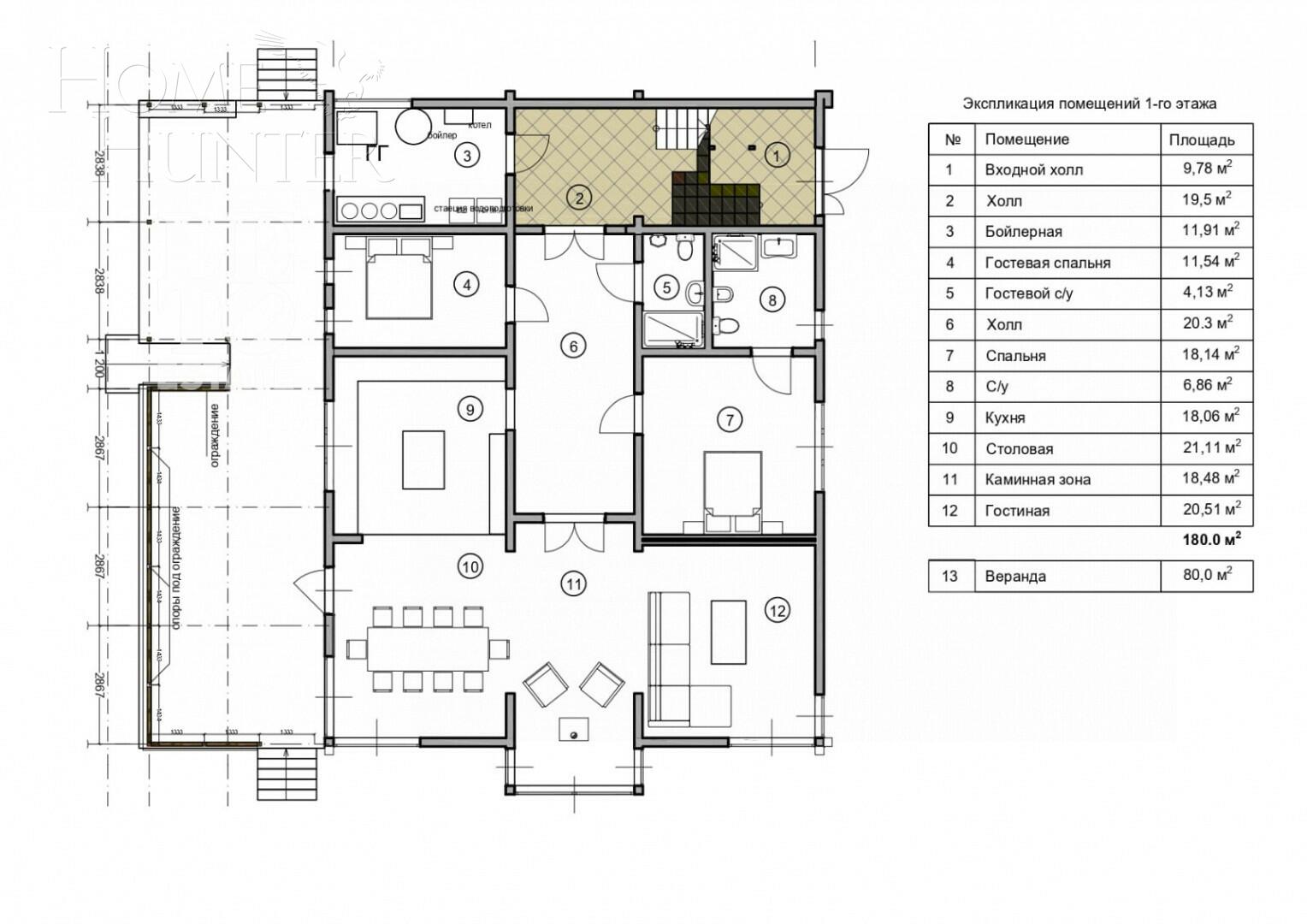
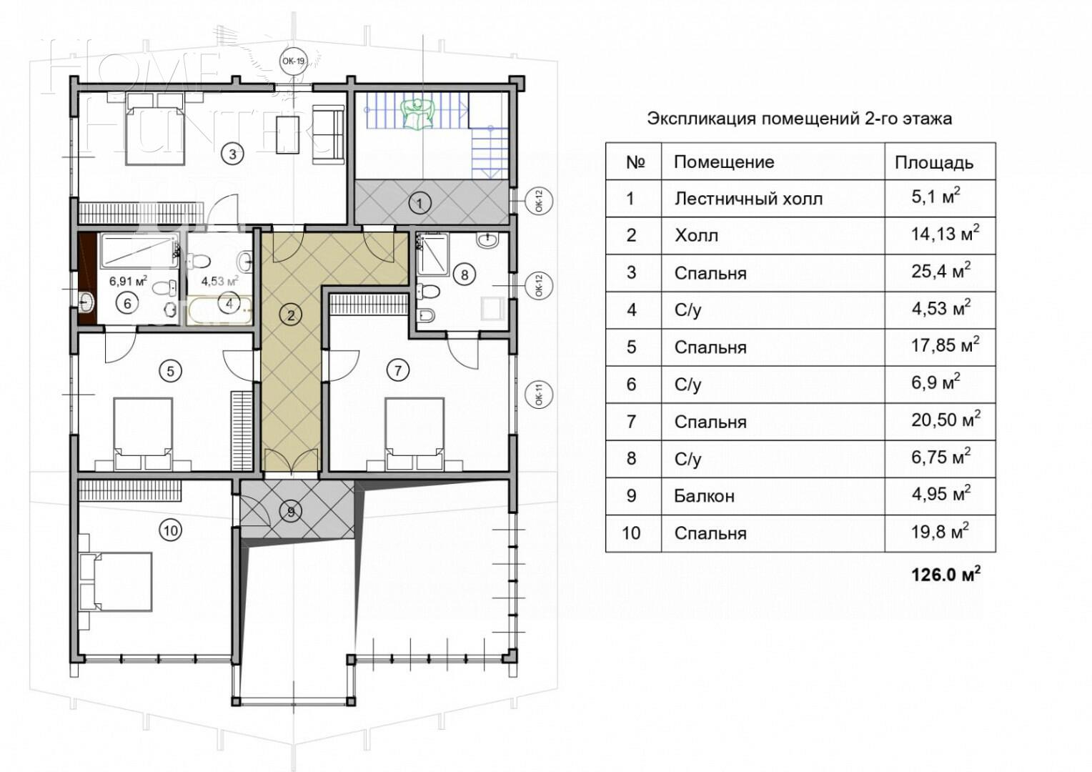
Планировка:
Первый этаж: холл, прихожая, гостевая спальня, санузел, котельная, спальня с собственным санузлом, гостиная с каминной зоной и вторым светом, кухня-столовая с выходом на террасу, просторная терраса с зоной для отдыха и BBQ.
Второй этаж: холл, детская спальня с санузлом, две мастер-спальни, гостевая спальня, балкон.
Коттеджный посёлок «Живописный» — это камерный посёлок, расположенный в окружении обширного лесного массива. Территория посёлка огорожена, а число домовладений ограничено 55, что обеспечивает жителям уединение и комфорт. Название посёлка «Живописный» обусловлено как уникальным ландшафтом, так и наличием множества водоёмов в его окрестностях, включая водохранилища и озёра.
КП «Живописный» находится в 33 км от МКАД. Добраться до посёлка можно по нескольким основным магистралям: Рогачёвскому, Дмитровскому и Ленинградскому шоссе. Такая транспортная развязка обеспечивает жителям посёлка лёгкий и быстрый доступ как к столице, так и к ключевым инфраструктурным объектам. Рядом с посёлком расположена автобусная остановка, откуда курсирует транспорт до МЦД Лобня.
КП «Живописный» расположен всего в 2 км от деревни Каменка, где сосредоточена вся необходимая инфраструктура, включая супермаркеты, детский сад, школу, медицинские центры, дом культуры и рынок. Также в деревне Каменка имеется озеро с пляжем для отдыха. Любители активного образа жизни и спорта найдут в окрестностях КП «Живописный» множество возможностей для разнообразного досуга. Здесь находятся базы отдыха, конно-спортивный клуб, спортивная база, бассейн и кафе, предлагающие разнообразные варианты отдыха.

























































































