ID 61134 БЕЗ ТОРГА
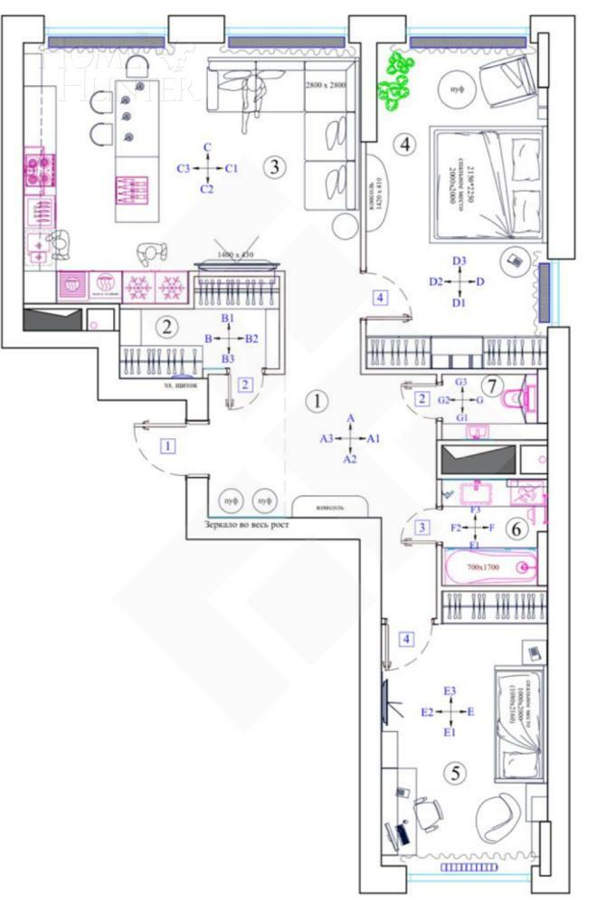
В ЖК бизнес-класса к покупке предлагается великолепная 3-комнатная квартира с дизайнерским ремонтом общей площадью 88,1 кв.м.
Планировкой предусмотрено:
- просторная кухня-гостиная;
- 2 изолированные спальни(панорамные окна квартиры выходят на противоположные стороны дома);
- 1 раздельный санузел (не совмещён с ванной комнатой)
- функциональная гардеробная.
Ремонт выполнен из качественных европейских материалов. Вся мебель и техника европейских брендов. Квартира продаётся со встроенной кухней и мебелью. Мебель по желанию можно частично вывезти.
Из гостиной открывается прекрасный вид на столицу: «Триумф Палас», Ходынское поле, Москва-Сити - как на ладони. Уютными вечерами Вам гарантированы завораживающие закаты.
ЖК Хорошевский - уютный семейный квартал в районе с развитой инфраструктурой. Двор без машин, комфортное расстояние между корпусами, на первых этажах расположились магазины на любой вкус, кафе, рестораны, точки бытовых услуг. На территории комплекса есть площадки для детей, выгула животных, фитнес-клуб с бассейном. Вход на территорию по магнитным пропускам, круглосуточная охрана и видеонаблюдение. Есть подземный паркинг, кладовые. Спуск в паркинг на лифте.
В пешей доступности м. "Октябрьское поле" - 7 минут пешком и МЦК "Зорге" - 5 минут пешком, обширные зеленые зоны парков "Березовая роща" и "Ходынское поле", ТЦ" Авиапарк". Номер в базе: J61134












































































































