Представляем по-настоящему редкое предложение для ценителей пространства и стиля: пятикомнатный трёхуровневый пентхаус площадью 208 м² на 23-м этаже элитного ЖК «Prizmа».
Это ваш личный городской оазис на высоте, где утро начинается с панорамного вида на Москву, а вечер завершается в атмосфере полного уединения. Квартира в качественной черновой отделке — чистый холст для создания интерьера, отражающего ваш вкус: минимализм, лофт, классика или арт-хаус.
Приемущества:Панорамные виды Москвы и полная приватность благодаря высоте расположения;Эффективная планировка с отдельной мастер-зоной, кабинетом и просторной террасой (25 м²);Качественная черновая отделка — идеальная основа для реализации любого дизайнерского замысла;Готовый дизайн-проект в подарок;Высокие потолки (3,0 м), панорамное остекление и второй свет в гостиной;Современная инфраструктура ЖК: подземный паркинг, консьерж, охрана, благоустроенная территория.
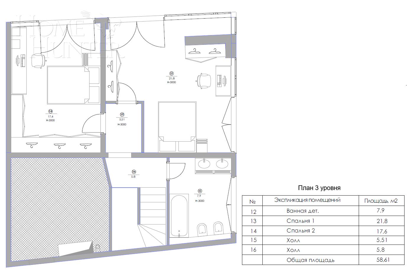
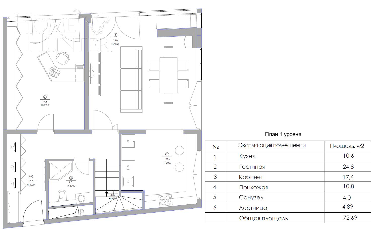
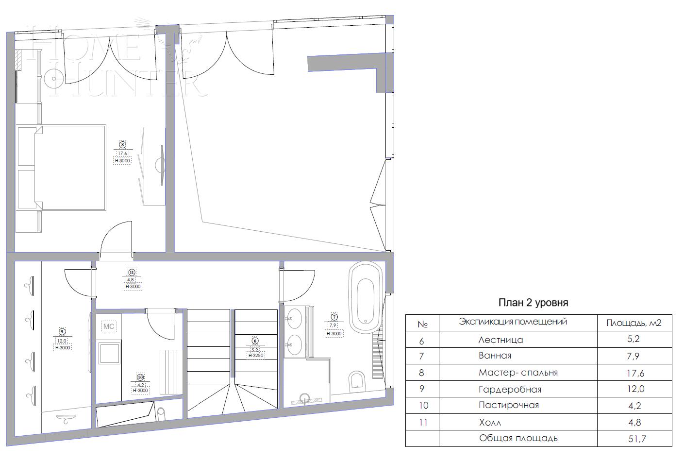
Планировка:1-й уровень (72,69 м²) — гостиная со столовой (24,8 м²), отдельная кухня (10,6 м²), кабинет (17,6 м²). Второй свет и панорамные окна наполняют помещение светом и воздухом, создавая ощущение безграничного простора. Балкон-терраса (25,0 м²) — настоящая жемчужина объекта: уголок на высоте птичьего полёта для утреннего кофе или ужинов под открытым небом. 2-й уровень (51,7 м²) — мастер-спальня (17,6 м²) с гардеробной (12,0 м²) и ванной (7,9 м²) — уединённый оазис, где можно полностью отключиться от ритма мегаполиса. 3-й уровень (58,61 м²) — две спальни (21,8 м² и 17,6 м²) и ванная (7,9 м²): гибко адаптируются под детскую, гостевую или кабинет. Каждый уголок здесь — отдельный мир, наполненный возможностями.Лестница из металлического каркаса — архитектурная доминанта, изящно связывающая все уровни.
Черновая отделка включает: железобетонные стены и перекрытия, стяжку, двухкамерные стеклопакеты, центральные коммуникации, центральное отопление с возможностью установки тёплых полов и кондиционеров. Это готовая база для реализации интерьера мечты.
В подарок — дизайн-проект от известной студии: визуализации, планы отделки, схемы инженерных систем, расстановка мебели. По проекту: гостиная с люстрой из муранского стекла, кухня с мраморной столешницей и барной стойкой, мастер-спальня с двухспальной кроватью, удобная гардеробная, зона отдыха на балконе.
ЖК «Prizmа» — 23-этажный комплекс бизнес-класса с фасадом из натурального камня и керамики. Закрытая территория, консьерж, охрана, видеонаблюдение, три скоростных грузопассажирских лифта, трёхуровневый паркинг с зарядками для электромобилей, благоустроенные зоны, магазины и сервисы на первых этажах.
Расположение: напротив — ТРЦ «Рио» («Перекрёсток», World Class, «Синема Стар»). В радиусе 3 км — МГУ, МГИМО, школы №1514, №323, Юго-Западный лесопарк, Вороноцовский парк, Удальцовские пруды.
ЗВОНИТЕ! C удовольствием отправим развёрнутую презентацию.
Сотрудничаем с коллегами 50/50.
Компания «Винидиктов и Партнёры» — участник Aссоциации Агентств Элитной Недвижимости AREA!
Арт. 124741004













































































