Торг с реальным покупателем! В продажу предлагается прекрасная квартира в ЖК бизнес-класса "Сердце столицы".
Новый дизайнерский ремонт, который делали для себя. Квартира полностью укомплектована необходимой техникой и мебелью. В квартире никто не жил.
Вид в красивый внутренний двор, видна река и Москва Сити, солнечная сторона, юг.
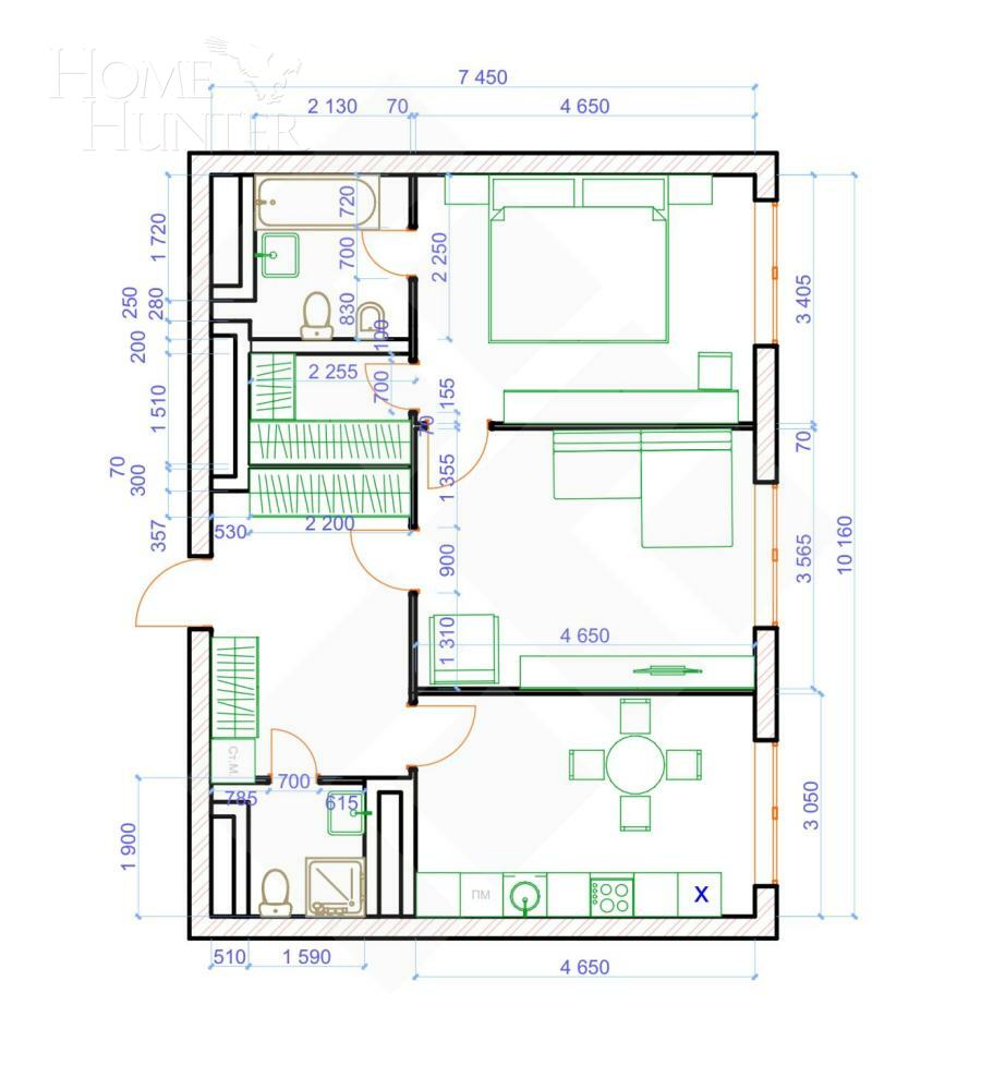
Планировкой предусмотрено:
- кухня-гостиная
- 2 спальни
- 2 санузла
Один взрослый собственник, никто не прописан, быстрый выход на сделку.
"Сердце столицы" - ЖК бизнес-класса, расположенный на берегу реки. Идет благоустройство набережной. Двор без машин, подземный паркинг. Видеонаблюдение по всему комплексу. Круглосуточная охрана комплекса и организация пропускного режима чере 5 КПП. Система контроля доступом. Консьерж сервис 24/7.
Внутри квартала построены детские сады и школа, творческие студии. Есть вся коммерция для комфортного проживания.
J61051 Номер в базе: J61051


















































































