Лот 62485 Дмитрий Зигануров
Эксклюзивно в CHASE.RES
Добрый день!
Мы предлагаем к продаже уникальный трёхуровневый лот, который кардинально изменит ваше представление о городском жилье. Это готовое решение для тех, кто ценит простор, приватность и нестандартный подход.
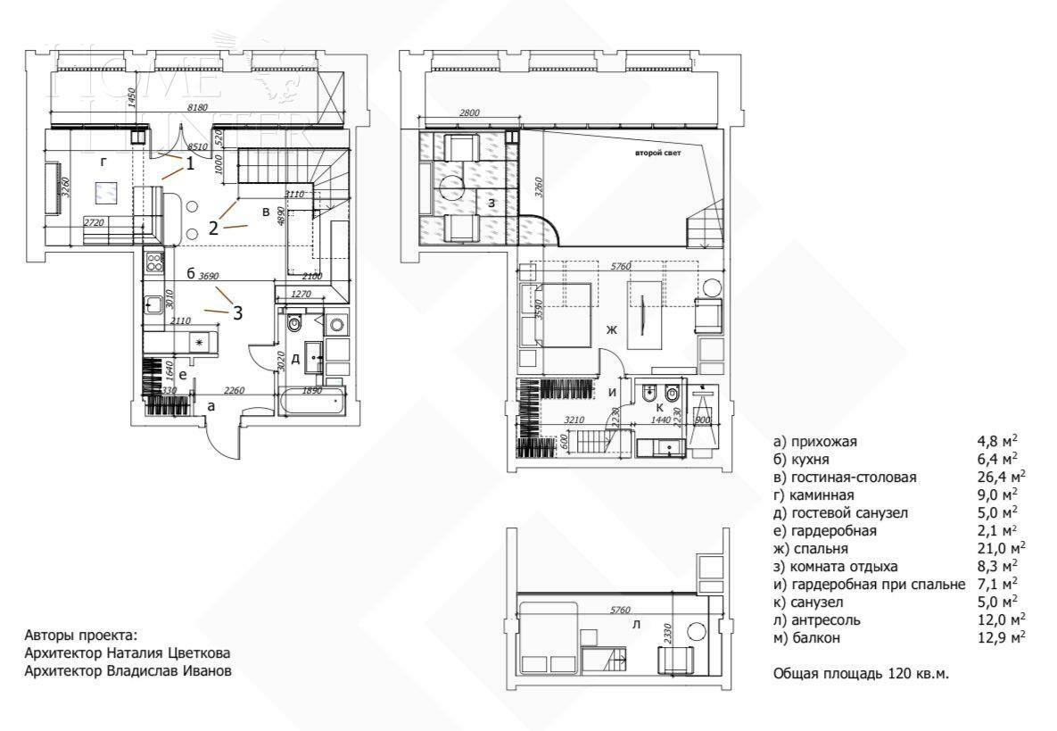
Эксклюзивный трёхуровневый апартамент с балконом.
Апартамент находится в перестроенном историческом здании на территории бывшей мебельной фабрики «Мюръ и Мерилизъ» — детища шотландских предпринимателей середины XIX века.
Стиль лофт немного брутальный, современный, открытый, с большим количеством металла, стекла, с кирпичной отделкой стен — был выбран ими совершенно осознанно.
Преимущества и планировка:
На первом уровне квартиры разместились открытая кухня с барной стойкой и столовой, гостиная со вторым светом и притягательной каминной зоной с естественным освещением через панорамное окно. А кроме того, гардеробная и гостевой санузел. Выход на огромный балкон 12м2.
Кухня, барная стойка выполнены на заказ по эскизам авторов проекта. Барные стулья Franky Velvet Grey, Eichholtz. Кухня, барная стойка, «Стильные кухни». Вся встраиваемая техника BOSСH. На полу—доска из массива дерева L’Antic Colonial (PORCELANOSA Grupo) и плитка Porcelanosa. Теплые полы, установлена японская система кондиционирования DAIKIN.
Как будто невесомая лестница из дерева и металла, ведущая на второй этаж, служит украшением гостиной, делая интерьер лёгким и современным. Лестница, ограждения, лавки у стола, «Студия лестниц Андрея Гостева». Люстры, LeHome Interiors. На полу — доска (L’Antic Colonial) из массива дерева.
На втором уровне, находится спальня, ванная комната, ещё одна гардеробная.
Архитекторы нарастили площадь второго уровня и продлили его площадкой со стеклянным полом, на которой организовали кабинет. Им также удалось устроить небольшую площадку на третьем уровне, куда ведёт лестница из гардеробной. Здесь расположили небольшую гостевую спальню. Отсюда открывается вид на панораму города и на всю квартиру. Квартира получилась гостеприимной и открытой, здесь буквально отовсюду, за исключением санузлов и гардеробных, открывается панорамный вид на центр Москвы.
Развитая инфраструктура Пресненского района: парки, школы, супермаркеты, все ключевые доминанты в шаговой доступности. Престижная локация для Вас и Вашей семьи.
Огороженная территория, видеонаблюдение, консьерж, охрана. Подземный и наземный паркинг.
Видео на руках. Подробности по телефону. Номер в базе: J62485




















































































