Арт. 111807482
Представляем вашему вниманию новый дом площадью 340 кв.м. рядом с прудом в коттеджном поселке «Русская деревня», расположенном всего в 28 км от МКАД по Новорижскому шоссе.
Архитектурный проект дома выполнен в современном стиле. Строгие линии, а также применение облицовочного кирпича BRAER в отделке фасада подчеркивает строгость и лаконичность. В архитектуре дома и внутренней отделке отсутствуют лишние детали, все на своем месте. В качестве материалов во внутренней отделке будут использованы дерево, керамогранитная плитка, стекло. На кухне будет установлена бытовая техника. На первом и втором этажах предусмотрена установка системы теплого пола. Находясь в данном доме, ощущается единение с природой и спокойствие. Дом подходит для круглогодичного проживания всей семьи.
Дом построен из керамических блоков (440 мм), фундамент свайно-ростверковый с залеганием на глубину 3м, кровля – натуральная черепица. Дом строится, будет сдан в отделке «под ключ» с мебелью осенью 2025 года. Цена указана за дом С ОТДЕЛКОЙ и МЕБЕЛЬЮ. На фотографиях представлены "живые" фотографии выполненной отделки в построенных застройщиком домах.
Участок, на котором расположен дом, прямоугольной формы, общей площадью 9,5 сот. На участке будут произведены все основные ландшафтные работы - выполнен дренаж, организована система автополива, посеян газон. На участок заведены все центральные коммуникации (газ, водоснабжение, электричество, канализация).
Отдельного акцента заслуживает планировка дома. Дом двухэтажный. Все пространство эргономично спланировано. Совмещенная кухня-гостиная позволит проводить теплые уютные вечера в семейном кругу, а в летнее время можно наслаждаться ужином на террасе. Также на первом этаже есть кабинет с выходом на индивидуальную террасу. Второй этаж отведен для спален.
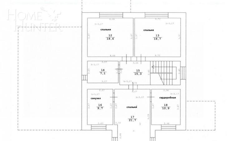
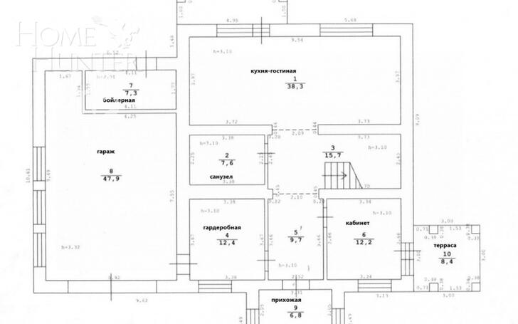
Планировка дома:
Первый этаж – прихожая, гардеробная, гараж на 2 машино-места, бойлерная, гостевой санузел, кухня-гостиная, терраса, кабинет, терраса.
Второй этаж – мастер-спальня, санузел, две спальни.
Элитный коттеджный поселок с развитой инфраструктурой «Русская деревня» расположен в 28 км по Новорижскому шоссе. Также можно добраться еще по двум шоссе: Волоколамское и Рублево-Успенское. Для безопасности жителей современная система с видеонаблюдением, обеспечивающая круглосуточную охрану.
Удобные дорожные развязки внутри поселка полностью заасфальтированы, как и подъезды к самим домовладениям. Широкие прогулочные дорожки вымощены брусчаткой. Вся территория коттеджного поселка имеет искусственное освещение, которое включается с наступлением сумерек и работает до рассвета.
Лужайки перед усадьбами и пешеходная зона дополнительно украшены зелеными насаждениями, создающими гармоничный ансамбль. Администрация поселка создала специальную службу, которая заботится о чистоте и порядке. Организован регулярный вывоз мусора, а также уборка и самих приусадебных участков, и пешеходной и автомобильной зоны. Есть собственная бытовая служба, помогающая жителям поселка решать мелкие повседневные вопросы без вызова специалистов из города.
Расположенное не территории озеро с маленькой лодочной станцией и возможностью рыбалки – важная особенность поселка, выгодно отличающая его от многих соседних деревень.
В поселке можно с комфортном жить в течение длительного времени. Практически идеальная инфраструктура позволяет организовать досуг для детей и взрослых, отдохнуть, заняться спортом и даже порыбачить, не покидая территории.
Загородный поселок бизнес-класса расположен на небольшом расстоянии от МКАД, но при этом отделен от шумного мегаполиса целой полосой поселков и лесным массивом. Это позволяет жителям наслаждаться тишиной и свежим воздухом в любое время года.
В ближайшей округе поселка есть вся необходимая инфраструктура Новорижского шоссе: детские сады, школы, медицинские центры, стоматологии, ветеринарная клиника, фитнес-клуб с бассейном, салон красоты, винный бутик, супермаркеты.
До Москвы Вы сможете доехать за 30 мин, что позволяет выбрать данное место как для временного, так и для постоянного проживания. Также можно доехать на общественном транспорте, в пешей доступности находится автобусная остановка.
Здоровая экологическая ситуация, качественные строительные материалы и развитая инфраструктура – главные отличительные особенности «Русской деревни».
















































