ЖК премиум класса Событие-5. МАШИНОМЕСТО!
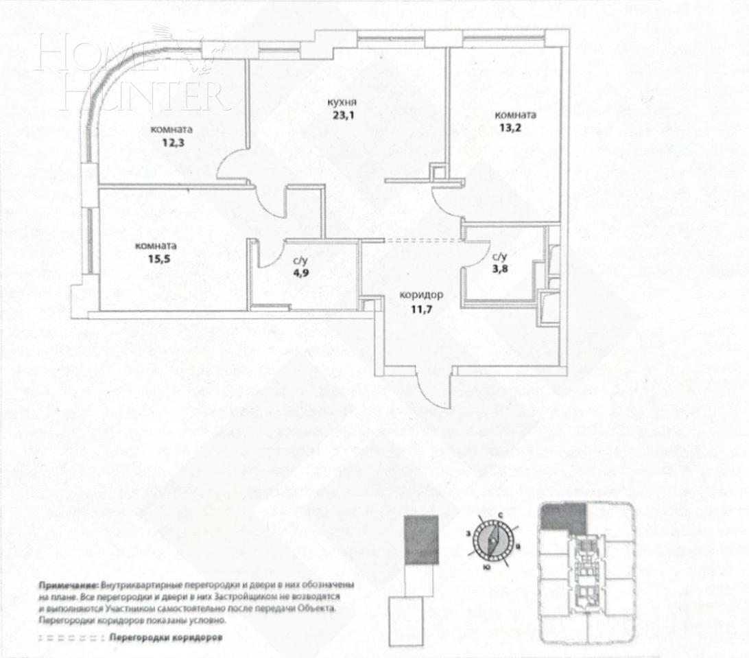
В продажу предлагается отличная евро 3х комнатная квартира БЕЗ ОТДЕЛКИ! СВОБОДНОЙ ПЛАНИРОВКИ!
Прямой выход в парк Событие!
Детский сад и школа в шаговой доступности в перспективе.
ЖК Событие - Архитектурный проект мирового
класса от LDA Design и UHA London
(Великобритания), признан Лучшим строящимся комплексом бизнес-класса Москвы и признан победителем Urban Awards 2021, а так же Лучшим проектом комплексного освоения территорий
Москвы и победителем Urban Awards Центральная входная группа двухуровневый атриум с витражными окнами, стеклянной крышей, потолками более 6 м. В лобби идеально сочетаются стиль и комфорт: авторский интерьер, бель на заказ, стойка ресепшен с кофе-пойнтом, оковоркинг с дизайнерской мебелью я деловых и активных.
Детский клуб для малышей и детей постарше; пространство букшеринга с книгами для их родителей. Кафе с террасами во дворе для встреч и семейных посиделок. Номер в базе: J61460























