ID: 585734
Атмосферная и просторная квартира площадью 189 кв.м. на 3 этаже малоквартирного кирпичного дома с лифтом, расположенного в 5 минутах пешком от сада им. Баумана.
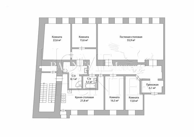
Планировочным решением предусмотрены: просторная гостиная-столовая с 5 окнами, кухня-столовая, 4 изолированные комнаты, 2 совмещенных санузла, большая прихожая с вместительными встроенными шкафами, кладовые помещения.
Высокие потолки от 3.4 до 3.6 м создают ощущение простора и воздушности, а многочисленные окна наполняют пространство естественным светом в течение всего дня. Квартира очень светлая, уютная и обладает особой атмосферной выразительностью. В квартире есть черный ход, позволяющий удобно организовать бытовые процессы.
Дом с толстыми стенами и хорошей звукоизоляцией. Чистый и просторный подъезд поддерживается в порядке, а придомовая территория с детской и волейбольной площадками ухожена и озеленена. Наземный паркинг на закрытой и охраняемой территории дома.
Район отличается богатым архитектурным наследием, интеллигентной атмосферой, органичным сочетанием исторической застройки с современными городскими решениями, развитой инфраструктурой и насыщенной городской средой. В окружении есть всё необходимое для комфортной жизни: фитнес центр с бассейном, спортивный комплекс с футбольным полем, уютные кафе и рестораны, гастрономы, премиальные продуктовые супермаркеты, аптеки, банки, престижные школы и детские сады. Неподалёку расположены торговые центры, а также благоустроенные городские пространства для прогулок и отдыха: Бауманский сквер, сад им. Баумана, старинные бульвары и переулки с неповторимым московским колоритом. В пешей доступности от дома расположен МГТУ им. Н. Э. Баумана. До станций метро Бауманская и Красные Ворота 11-12 минут пешком.
Это редкое предложение для тех, кто ищет жильё с характером — просторное, стильное, в окружении столичной истории и городской культуры. Идеальный вариант как для комфортной жизни, так и для долгосрочной инвестиции в качественную недвижимость.
Без обременений, в собственности более 10 лет, никто не зарегистрирован.
Участник ассоциации AREA.

















































