Представьте, просыпаться в лучах нежного рассвета, когда первые золотистые блики солнца скользят по стеклянным фасадам Москва-Сити, окрашивая небоскрёбы в розово-оранжевые тона!
Расположенные на 33-м этаже 68-этажной башни T1, 2-комнатные апартаменты в элитном ЖК Neva Towers — воплощение современной роскоши и уюта.
Дизайнерский интерьер от Дины Герасиной (студия ArtD), опубликованный в журналах и блогах, технология «умный дом», премиум-меблировка и материалы.
Описание апартаментов:
• Панорамный вид на 2 стороны на Москва-Сити и Поклонную гору через угловые французские окна.
• Минималистичный стиль: благородные фактуры (искусственный камень Rocky Quick Panels, паркет Finex, деревянные и тканевые панели), серый потолок для ощущения лёгкости, тактильные поверхности для тепла и уюта.
• Умный дом: удалённое управление шторами black-out, вентиляцией, обогревом, освещением; продуманные сценарии света для дня и вечера.
• Оригинальные детали: арт-объект от Moon Stores в холле, декор Ceramum.
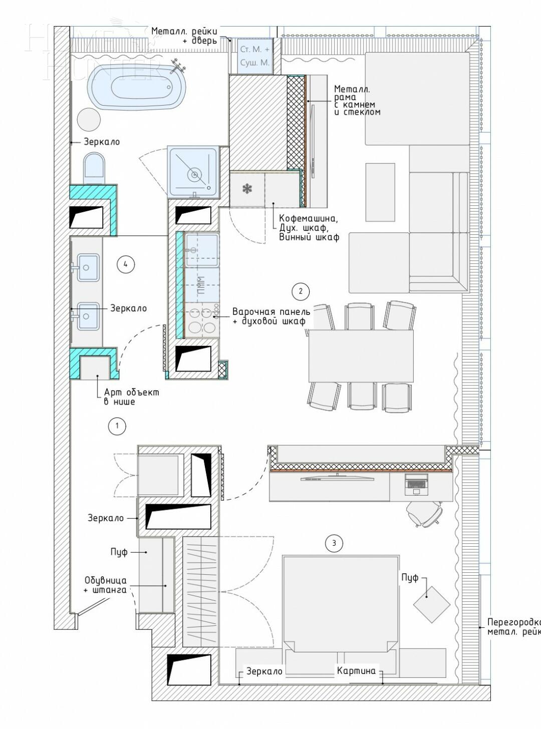
Планировка:
• Гостиная-кухня 20 м², жилая зона 45 м².
• Компактная кухня, интегрированная в нишу.
• Камерная спальня в серых тонах с видом на город.
• Ванная с отдельностоящей ванной Besco у окна для релакса в огнях мегаполиса.
Мебель и техника:
• Премиум-мебель: кровать Minotti Tatlin Soft, стол Minotti Morgan, столик Minotti Bellagio, прикроватные тумбочки Aston Martin, диван и стулья российского производства.
• Шкафы, кухня и панели на заказ от Maltese Group по эскизам дизайнера; реечная перегородка Boca Stripe.
• Освещение: трековые светильники Центрсвет, подвесы Flos IC Lighting и Taccia, над столом Vibia Slim.
• Сантехника: смесители Wasserkraft; техника премиум-класса.
Преимущества ЖК Neva Towers:
• Элитный комплекс в Москва-Сити, башня T1, 68 этажей, панорамное остекление, высота потолков 3,5 м.
• Инфраструктура: приложение для управления (пропуска, батлер, услуги), фитнес-центр, бассейн, спа, рестораны, консьерж 24/7, подземный паркинг, лифты.
• Безопасность: круглосуточная охрана, видеонаблюдение.
Инфраструктура и транспорт:
• Центр бизнес - активности с офисами, конференциями, событиями; жизнь полная динамики — от встреч в башнях до networking в кафе.
• Транспорт: метро Москва-Сити (5 мин.), Деловой центр (5-8 мин.), Шелепиха (16-19 мин.); быстрый выезд на ТТК и Садовое кольцо.
• Инфраструктура: рестораны, бары, фитнес-клубы, магазины, клиники; рядом Афимолл Сити, Экспоцентр; парки и набережные для отдыха после насыщенного дня.
Один взрослый собственник, свободная продажа без обременений, полная стоимость в ДКП.
Ваш ключ к стильной жизни в сердце Москвы!
Сотрудничаем с агентами 50/50.
АН Винидиктов и Партнеры - участник Ассоциации Агентств Элитной Недвижимости AREA!
Арт. 115416077































































