ID: 561120
Видовой изысканный 2-уровневый пентхаус с камином и террасой в клубном доме «Афанасьевский». Большая солнечная терраса с зоной отдыха, барбекю и великолепными видами придают особый шарм, комфорт и уют.
Выполнена безукоризненная отделка по авторскому проекту именитого премиального дизайнера с использованием натуральных природных материалов (мрамор, дерево, дуб, текстиль) от ведущих мировых производителей.
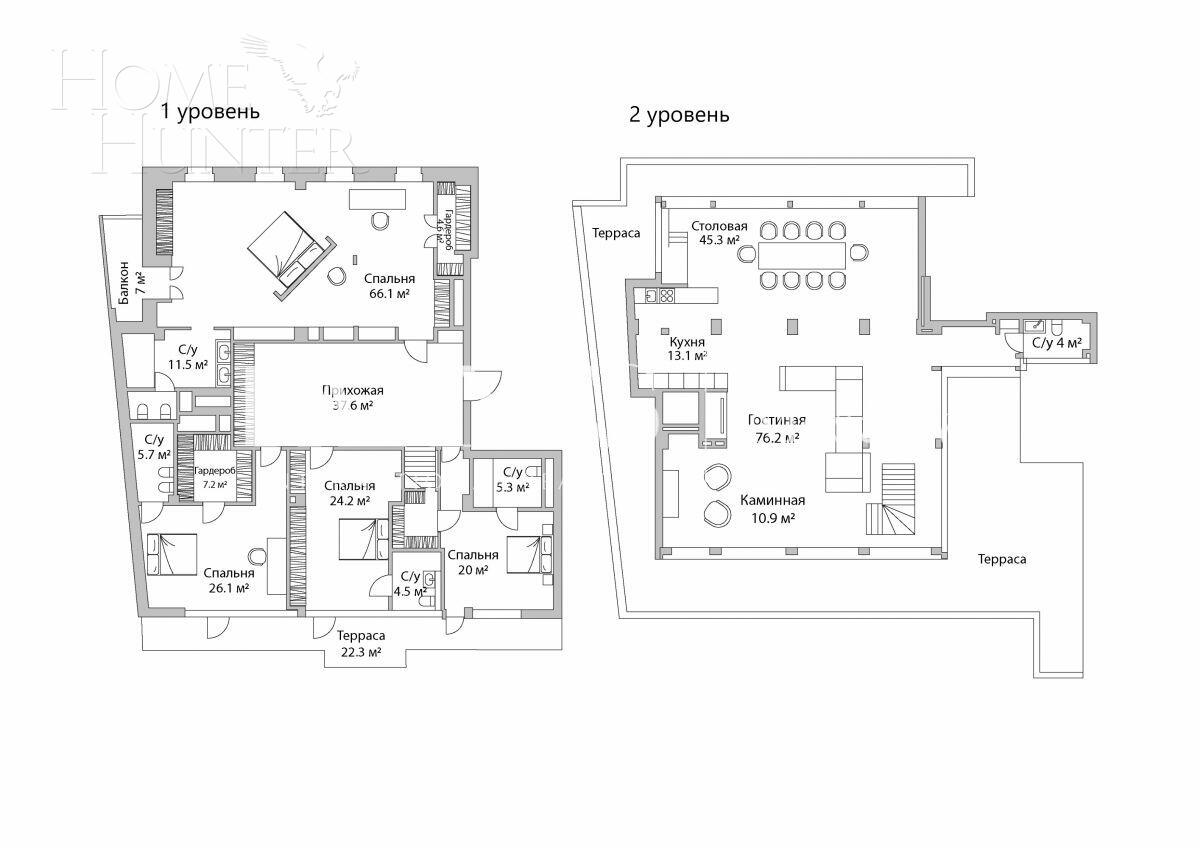
Планировочное решение:
1 уровень - холл, великолепная основная спальня с несколькими гардеробными, санузлами и балконом, еще 3 спальни с собственными санузлами, гардеробными комнатами и выходами на просторную террасу;
2 уровень - роскошная гостиная с каминным залом, кухня-столовая, санузел.
Квартира полностью меблирована, декорирована и оборудована бытовой техникой. Максимально эффективно использовано пространство. Установлены системы приточно-вытяжной вентиляции и индивидуального кондиционирования.
Окна ориентированы на три стороны света. Потолки 3.5 м.
В наличии зона релакса с хаммам, спортивный зал, квартира для персонала на -1 этаже и 3 машино-места в подземном паркинге.
Респектабельный жилой комплекс в спокойном переулке старого Арбата на территории старинной усадьбы Зиновьевых-Юсуповых. На закрытой территории комплекса выполнен ландшафтный дизайн с цветниками и газонами, оборудована детская площадка. Подземный паркинг, круглосуточная охрана.
Участник ассоциации AREA.













































































































































