Арт. 103130702
Вашему вниманию представляется просторный дом с продуманной планировкой в поселке бизнес-класса Пестово Лайф. Дом общей площадью 500 квадратных метров расположен на ровном участке 10 соток. Дом полностью облицован снаружи, уложена кровля, разведен дренаж по периметру, установлен забор и откатные ворота. Поселок расположен в 26 км от МКАД по Дмитровскому шоссе.
Дом построен в 2015 году с использованием дорогостоящих материалов и строго по проекту. Стены построены из кирпича и блока, утеплены. Фасад дома исполнен из искусственного камня, лиственницы сорта А со скрытым крепежом и декоративной штукатурки. Фундамент монолитный.
Все коммуникации в поселке центральные: канализация, водопровод, газ. Электричество 15 кВт.
Первый этаж: прихожая, холл, гостиная, кухня с выходом на террасу, столовая, кладовая, гостевая спальня, гостевой санузел, гардеробная
Второй этаж: мастер-спальня с собственным санузлом и гардеробной, спальня с гардеробом, кабинет, лестничный холл, спальня, санузел
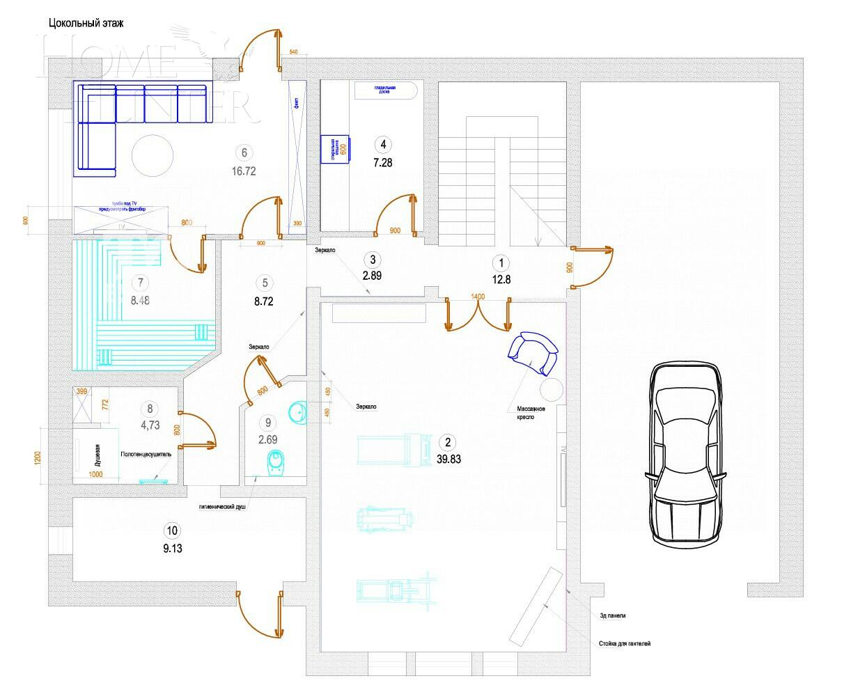
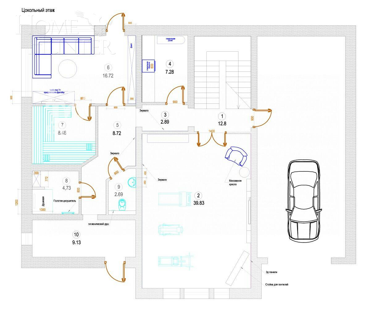
Цокольный этаж: спортивный зал, постирочная, сауна, комната отдыха, душевая, санузел, бойлерная, гараж на 2 м/м
Пестово Life – коттеджный поселок бизнес-класса, расположенный на берегу канала имени Москвы. От поселка до МКАД можно добраться всего за 30 минут, ведь поселок расположен в 26 км от столицы по Дмитровскому шоссе. Прекрасная транспортная доступность - до ж/д станции "Трудовая" на автобусе 8 минут езды (остановка рядом со въездом в поселок), до Савеловского вокзала на электричке - 50 мин. При этом Пестово Life отличается прекрасной экологией: с трех сторон он окружен лесом, а с четвертой находится красивейшая набережная канала имени Москвы. Поселок Пестово Life абсолютно пригоден для постоянного, круглогодичного проживания. В поселке есть все центральные коммуникации, по близости расположен торгово-развлекательный комплекс Каштановая роща.
В непосредственной близости от поселка расположены горнолыжные курорты Московской области Сорочаны, Яхрома, рестораны, гольф-клубы, конные и яхт клубы, усадьба "Марфино", музеи. Рядом - лес, деревня (магазин, где есть самые необходимые продукты и товары), церковь 19 века. Ближайшие детские сады, школы - муниципальные в с. Марфино.




































































