№ 2514
Дом 969,8 кв. м с отделкой на участке 37,36 соток в коттеджном поселке класса «Deluxe» – «Барвиха ХХI». Поселок расположен в 5 км от МКАД по Рублево-Успенскому шоссе или платной трассе М-1. Московская область, Одинцовский городской округ, деревня Рождественно, территория Барвиха-21.
Ключевые особенности:
индивидуальный архитектурный проект с технологичными решениями в строительстве и дизайне, ремонт "под ключ", меблирован, лифт, высокие двери, высокие потолки, большая площадь остекления, 5 спален, 6 гардеробных, 6 с/у, большие террасы, спа-зона, гараж на 3 а/м, квартира для персонала, ландшафтный дизайн.
Конструктив:
фундамент – монолит, внешние стены – монолит/кирпич, кровля – металлочерепица, фасад – песчаный камень, цоколь – мрамор, ступени и террасы – гранит, окна – деревянные стеклопакеты.
Внутренняя отделка:
натуральные материалы из камня, дерева, кожи с металлом и стеклом, различные системы и формы освещения, элементы декора современного и классического стиля, стильная современная и классическая мебель, полы и лестница – мрамор и инженерная доска.
Коммуникации все центральные:
электричество 25 кВт, канализация, водопровод, магистральный газ, ливневая канализация.
Системы: видеонаблюдения, умного освещения, охранной и пожарной сигнализации, пожаротушения, интернет – оптоволокно.
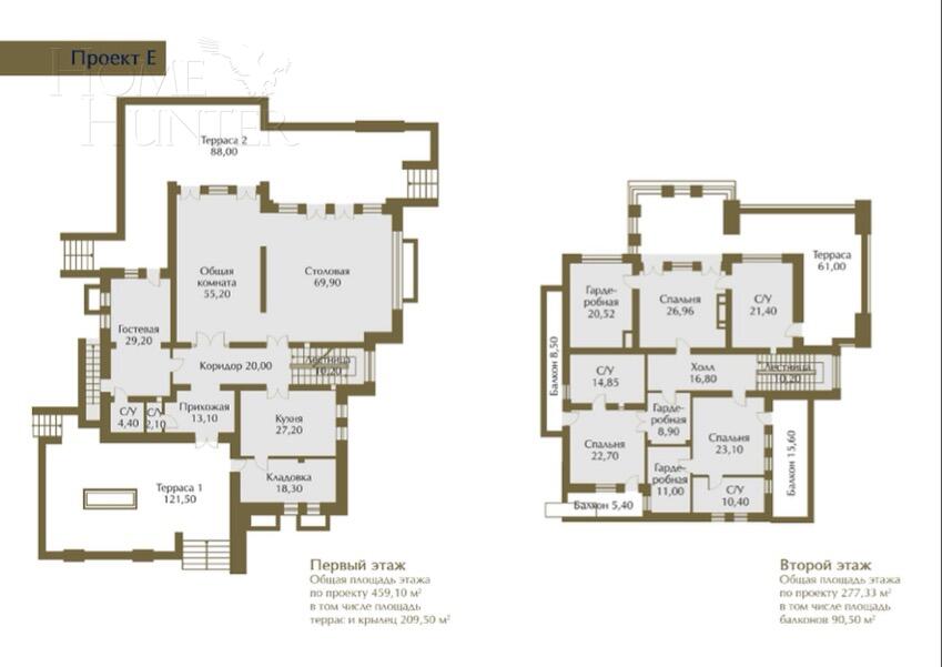
Планировка:
1 этаж: прихожая, холл с лифтом, кухня-столовая-гостиная с выходами на террасу, зона 1 – кабинет с гардеробной, с/у, выходом на крыльцо, с/у; зона 2 – гостевая спальня с с/у, гардеробной, с выходом на террасу, с/у;
2 этаж: холл, 2 спальни с с/у, гардеробными и выходами на балкон, зона мастер-спальни с с/у и гардеробной с выходом на террасу;
Цокольный этаж: 2 сезонные гардеробные, тренажерный зал, раздевалка, спа-зона с сауной, хамам, котельная, постирочная, квартира для персонала;
Отдельно стоящий гараж: 3 а/м, комната для водителей, комната охраны, кухня, 2 с/у, хозблок.
Участок:
37,36 соток, ровный, огорожен забором на бетонном основании, высажены лесные и садовые деревья, газон. На участке отдельно стоящий гараж 175 кв. м. Выполнено освещение, парковка выложена брусчаткой, 4 + а/м.
Инфраструктура внутренняя:
коттеджный поселок класса «Deluxe» – «Барвиха ХХI» составляет 25 га, расположен в окружении 20 га смешанного леса, есть озеро. В поселке многоуровневая система охраны, КПП, видеонаблюдение, патрулирование. Широкие улицы, тротуары, бульвары, спортивная и детская площадки, администрация.
Инфраструктура внешняя:
в 10 минутах езды инфраструктура пос. Барвиха и Жуковка – "Барвихинская школа", поликлиника, медцентры, супермаркеты, теннисный клуб "Держава", конно-спортивные клубы, фитнес-клуб, бассейн, гимназия, детские сады, кафе, рестораны. Отличная транспортная доступность по Рублево-Успенскому шоссе и скоростной платной трассе до Москва- Сити.

















































































