ID: 587097
Уникальный двухуровневый пентхаус с террасой в клубном особняке «Дом на Хлебном» в историческом центре Москвы.
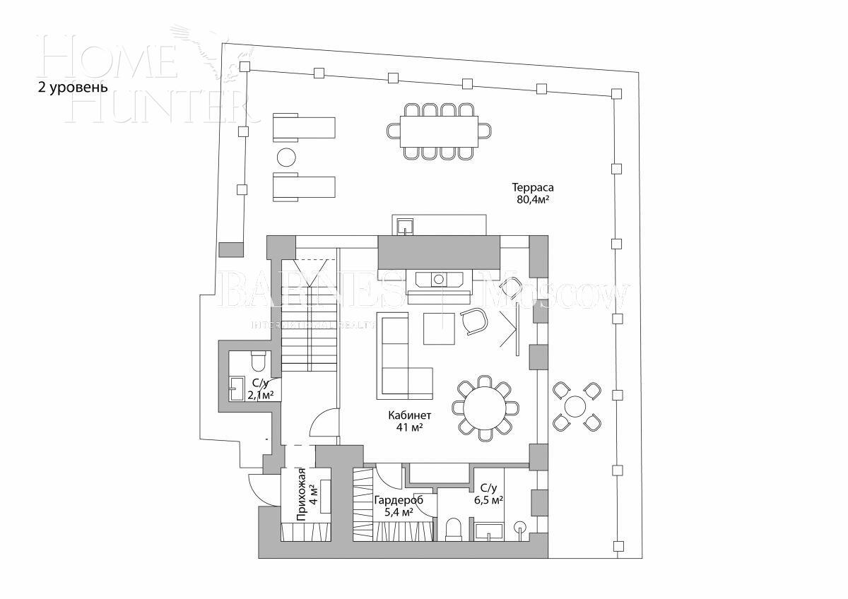
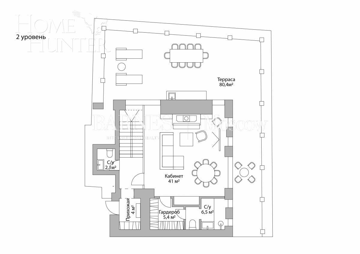
Планировочное решение:
1 уровень – просторная гостиная, кухня-столовая, мастер-спальня с гардеробной и ванной комнатой, детская спальня с ванной комнатой, гостевая спальня с ванной комнатой, гардеробные, постирочная, холл;
2 уровень – кабинет с ванной комнатой, гардеробной и выходом на огромную террасу площадью 80.4 кв.м, гостевой санузел, прихожая с гардеробом.
Панорамные окна с великолепными видами на центр Москвы. Высота потолков: 3.78 м на первом уровне, 3.97м на втором уровне.
«Дом на Хлебном» - клубный особняк на 12 квартир, расположенный в тихом и уютном переулке в пешей доступности от легендарных Патриарших прудов. Дом полностью реконструирован с заменой инженерных систем и коммуникаций. Стильная входная группа. К вашим услугам профессиональный персонал: горничные, консьерж, водитель и служба охраны, готовые решить любые ваши запросы и обеспечить полную безопасность.
Клубный дом впечатляет своей архитектурой в стиле неоклассицизма, олицетворяя элегантность и вкус. Каждое жилое помещение уникально сочетает исторические детали и современный дизайн, создавая идеальное пространство для комфортной жизни. Расположение здания в центре столицы открывает доступ ко всем преимуществам московской жизни, живописным видам и насыщенной культурной среде.
Расположение дома обеспечивает мгновенный доступ к ключевым местам города: всего за 7 минут можно оказаться на Патриарших прудах, за 8 минут дойти до Нового Арбата, а за 15 минут прогуляться до самого сердца Москвы — Кремля.
Участник ассоциации AREA.


































































