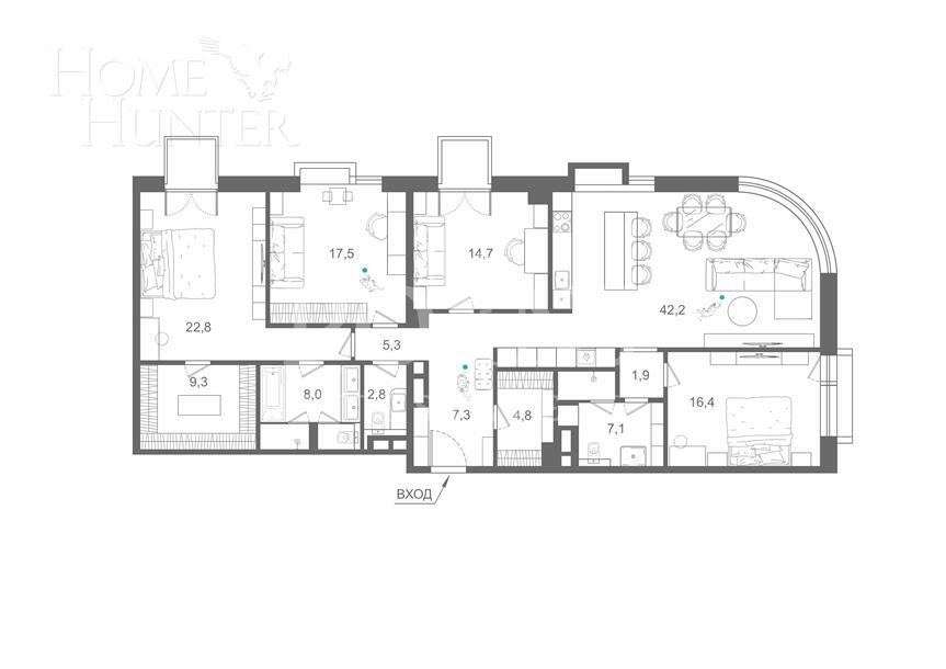
Лот: 113809. Квартира с 4-мя спальнями, большим количеством мест для хранения и индивидуальной планировкой от застройщика. На продажу предлагается пятикомнатная квартира, площадью 167 кв.м., в комплексе элитных резиденций "Victory Park Residence". Индивидуальная планировка: кухня-гостиная, три спальни, одна из которых со своим санузлом, спальня с гардеробной и санузлом, гардеробная, гостевой санузел, постирочная, прихожая. Высота потолков - 3,2 м. Из панорамных радиусных окон открываются великолепные виды на Парк Победы и Москва-Сити. В квартире идет отделка. Закрытая и охраняемая территория. Видеонаблюдение. Подземный паркинге. Насыщенная инфраструктура в торговой галерее на -1 уровне комплекса.Предусмотрено все необходимое для комфортной жизни. Для жителей Victory Park Residences благоустроены: частный парк VICTORY GARDEN площадью 4 га, большой озелененный двор, зоны для занятий спортом, детские площадки и площадки для медитации. Богатая инфраструктура VICTORY GALLERY удовлетворит самые разные запросы резидентов, при этом продуманное расположение удачно отделяет торговые пространства от жилых. Все сервисы и магазины, частично размещённые ниже уровня земли, доступны даже без выхода из здания - к ним легко и быстро можно спуститься на лифте. Удобная транспортная доступность. Участник ассоциации AREA.





































































