Лот:55862.
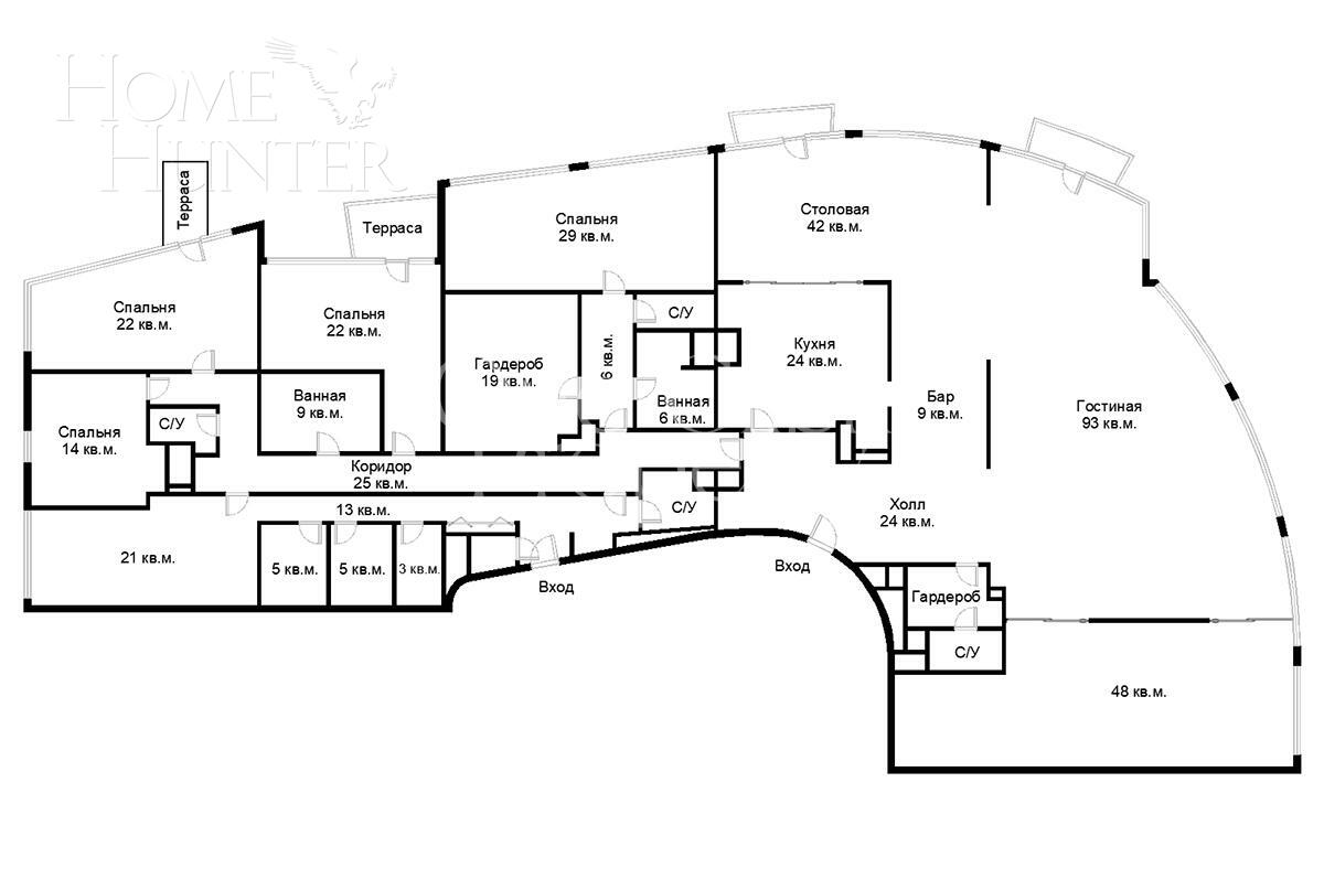
Полностью готовая к проживанию квартира с дизайнерской отделкой в клубном доме класса de-luxe. Спланировано: просторная гостиная 92,5 кв.м с выделенной кухней, хозяйская спальня с собственной ванной комнатой и гардеробной, 2 детские спальни, гостевая спальня, ванные комнаты, гардеробные, кабинет. В зону персонала предусмотрен отдельный вход, здесь расположены которая спальни для нянь и кухня. Имеются 3 машиноместа в подземном паркинге (не входят в стоимость). Инфраструктура комплекса закрытая, клубного типа: на первом этаже находится плавательный бассейн, русская баня и турецкий хамам тренажерный зал, приватная клубная комната. "Брюсов 19" - один из знаковых домов в Москве. Авторская архитектура, "древесный" фасад "Брюсов 19" получил престижную международную премию "Building Awards".















































































