ID: 577023 Эксклюзив Barnes
Исключительно красивый 4-комнатный апартамент площадью 117.9 кв.м. с новой отделкой в современном стиле на 3-м этаже в клубном доме премиум-класса Il Ricco на Чистых прудах.
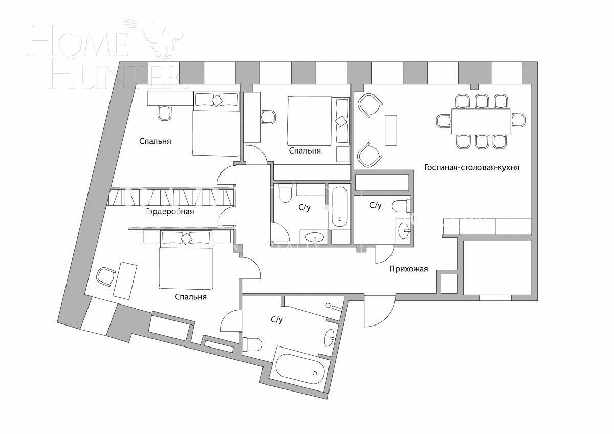
Планировка апартамента тщательно продумана, максимально функциональна, включает в себя просторную зону гостиной-кухни-столовой 30 кв.м., полноценный мастер-блок со своим санузлом и гардеробной общей площадью 32 кв.м., 2 детские спальни - 15 кв.м. и 12 кв.м., 2 дополнительных санузла, в одном из которых установлен бойлер, и холл.
Апартамент полностью меблирован, включая коллекционную итальянскую мебель Baxter, встроенную кухню Cezar с бытовой техникой Kuppersbusch (варочная панель на 4 конфорки, духовой шкаф, микроволновая печь, посудомоечная машина). Столешница на кухне и подоконники изготовлены из натурального камня, на полу - паркетная доска из ореха.
За безупречный внутренний климат апартамента отвечают фанкойлы IGC знаменитой английской марки в люксовом сегменте. Отопление реализовано через встроенные напольные конвекторы. В апартамент интегрирована система умный дом.
Il Ricco - клубный малоэтажный особняк на 11 апартаментов, построенный главным архитектором Государственного Исторического музея на Красной площади Александром Поповым и принадлежавший купцу Осипу Сорокину. В 2016 году особняк был полностью реконструирован с установкой современных инженерных систем и реставрацией фасада по исторической документации объекта из городского архива.
В стильной дизайнерской отделке входной группы использованы дорогостоящие натуральные материалы – оникс и мрамор; установлен бесшумный лифт ThyssenKrupp. В доме есть консьерж, видео-наблюдение собственной службы безопасности 24/7. Огороженная и охраняемая территория с наземной парковкой для жителей дома, за апартаментом закреплено 2 машино-места.
Подсосенский переулок, находясь вблизи множества точек интереса (кафе, рестораны, театр Современник, Чистые пруды), является одним из самых спокойных и тихих мест в исторической Москве. В любое время можно открывать окна апартамента, не беспокоясь о шуме. Порадует и приятный вид из окон на сквер.
Дом находится в шаговой доступности от станций метро Чистые пруды и Курская.
Участник ассоциации AREA.




































































































