Id 25990. Продается 3-х комнатная квартира в сталинском доме в ЦАО, Район Замоскворечье. Метро Павелецкая, Добрынинская, Серпуховская 4-7 мин. пешком.
Адрес: Москва, ул.Валовая, д.8/18, 7 эт. 11 эт. кирп.
Дом после капремонта. 2 лифта, которые в 2016 году поменяли на новые. Чистый и отремонтированный подъезд. Приятное добрососедство.
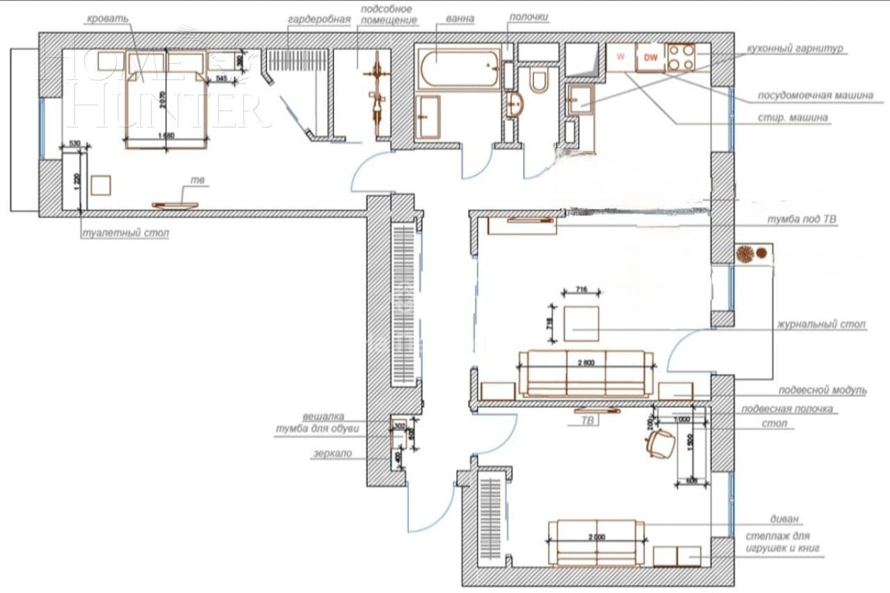
Общ. площадь квартиры - 79,3 кв.м. Жилая - 55,9 кв.м. 3 изолированные комнаты,
2 с/у, 1 лоджия. Три окна квартиры выходят в тихий зеленый двор. Потолки: перекрытия ж/б, h=3,05 м. Полы паркет.
ВСЁ в шаговой доступности: детсад и школа во дворе дома. Зеленый тихий двор. Закрытая дворовая территория (охрана Чоп). Въезд под шлагбаум. Домофон и видеонаблюдение. Общий закрытый тамбур на 2 квартиры. Железные двери.
Свободная продажа. 1 Взросл. Собственник.
Оперативно организуем просмотры. Юридическое сопровождение в сделке.


















































































