Просторный двухуровневый пентхаус 201 кв.м на 24 этаже в жилом комплексе “Аврора”, расположенном в 5 м. ходьбы от ст.м. Кунцевская. Из окон гостиной и спален открываются панорамные виды на город - в сторону Москва-Сити и центра.
Благоприятная экология (запад Москвы), зеленый район с неплотной жилой застройкой (в 10 минутах природный заказник Долина реки Сетунь и парк Поклонная гора). Прямо во дворе - школа и прогулочная зона у Богдановского пруда.
Планировка: 2 спальни (каждая - с собственной ванной комнатой и гардеробной), большая гостиная со вторым светом и потолками 6 м, светлая столовая с панорамными окнами, изолированная кухня, кабинет с лоджией, гостевой с/у, постирочная.
Особенности: редкая полукруглая планировка, высокий этаж, авторский интерьер в стиле ар-деко, дорогие материалы в отделке (в том числе - глянцевая паркетная доска, сверкающая мозаика), мебель европейских брендов.
Изюминка интерьера - круглая ванна на подиуме у панорамного окна в мастер-блоке.
Оборудование: система кондиционирования Mitsubishi, теплый пол, охранная сигнализация. На кухне техника Liebherr (холодильник и винный шкаф) и Siemens (духовка и кофемашина).
Доступно 1 м/м на подземном паркинге с удобным расположением относительно лифтового холла.
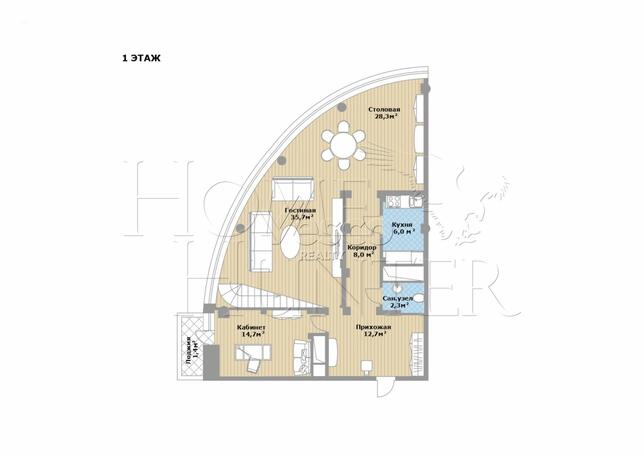
ПЛАНИРОВКА
1 уровень:
Прихожая (12,7), гостиная (35,7), столовая (28,3), кухня (6), кабинет (14,7) с лоджией (1,4), гостевой с/у (2,3), коридор (8).
2 уровень:
Мастер-спальня (18,9) с ванной (13,3) и гардеробной (5,1), детская спальня (14,9) с ванной (7,2), постирочная (5,3), гардеробная (7), холл (10), коридор (3,7), второй свет.
ЖК АВРОРА
Жилой комплекс бизнес-класса расположен в Можайском районе западного округа Москвы, в непосредственной близости от Можайского и Рублевского шоссе, а также северного дублера Кутузовского проспекта. Всего в 12 минутах находится МЦД Рабочий поселок, в 20 минутах - станции метро Кунцевская и Молодежная.
Комплекс состоит из двух высотных башен и располагает огороженной ухоженной территорией co шлагбаумом, подземным и наземным паркингом. Работают круглосуточная система охраны и консьерж-сервис. Башни оснащены скоростными лифтами. В домах установлено современное инженерно-техническое оборудование.
В пешей доступности сложившаяся социально-бытовая инфраструктура района: школы и детские сады, спортивные, детские площадки, клиники, супермаркеты, пункты выдачи маркетплейсов, кафе и рестораны, салоны красоты и фитнес-центры.
Участник AREA - Ассоциации Агентств Элитной Недвижимости













































































