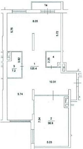
Лот: 67443. Просторная квартира площадью 156 кв. м. без отделки в жилом комплексе "Дом на Покровском бульваре". Высота потолка 3,30 м. Возможная планировка: кухня-гостиная, спальня с гардеробной, спальня, спальня с санузлом, совмещенный санузел, балкон. Машиноместо в подземном паркинге по запросу. Есть возможность объединить две квартиры на этаже до площади 316 кв. м. ЖК "Дом на Покровском Бульваре" построен поблизости от аллей Покровского бульвара и окружён памятниками российского зодчества прошлых веков. Придомовая территория ЖК «Дом на Покровском бульваре» благоустроена. Секции дома, по проекту, образуют закрытый внутренний двор, а между собой они связаны галереями, выполненными из стекла. Здесь выполнен ландшафтный дизайн с высадкой деревьев редких пород. Инфраструктура района, окружающего жилой комплекс, очень насыщенная.Участник ассоциации AREA.









































































