ID 6344
Таунхаус с авторским ремонтом в ЖК Футуро Парк. Посёлок в 20-25 минутах езды от Москвы, с развитой инфраструктурой, прекрасно подойдёт для жизни за городом. Объект с полностью выполненным ремонтом, сантехника Villery & Boch, материалы натуральный камень, керамогранит, массив дуба.
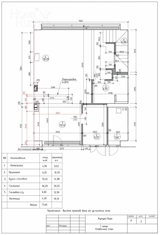
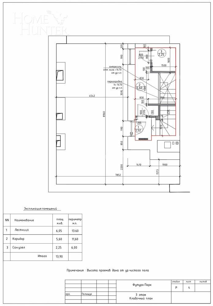
Планировка:
1 этаж: гостиная-кухня-столовая, прихожая, санузел, подсобное помещение. Выход на оборудованный задний двор (пристройка с перголой).
2 этаж: две спальни, детская и гостевая, гостевой санузел с душевой, писсуаром, туалетом и раковиной. Хозяйская спальня с отдельным санузлом, ванной, туалетом и писсуаром.
3 этаж: постирочная, санузел с раковиной и писсуаром, подсобным помещением и выходом на полностью оборудованную крышу (выведена летняя вода, душ, лежаки, мебель, солнцезащитный зонт).
Отопление:
Полностью автономное газовое отопление с сервоприводом и мозгами Висман. (Выставляешь комфортную температуру, все работает само собой, очень экономично).
Посёлок входит в Вилладжио Эстейт, что позволяет пользоваться инфраструктурой комплекса посёлков Вилладжио.






























