Эксклюзив! Коттедж бизнес-класса 484 кв.м 2023 года постройки в тихом районе рядом с Рублёво-Успенским шоссе - место, где Вам будет очень спокойно, уютно и комфортно и где Вы сможете забыть о городской суете.
ПРЕИМУЩЕСТВА:
-Чистовая отделка в минималистичном стиле, которая позволяет без проблем поменять цвет стен и плитки
-Большая мастер-спальня 27 кв.м со своим выходом на балкон -Усиленная за счет каменной ваты теплоизоляция
-Панорамные окна и отличные видовые характеристики
-Тихий посёлок
КОММУНИКАЦИИ: сетевой газ, отопление - газовый котел, теплые полы с регулировкой температуры в каждой комнате, артезианская скважина, надежная система водоочистки, большой септик. На отмостке размещены решетки для отведения воды, застоя которой не происходит за счет рельефа местности.
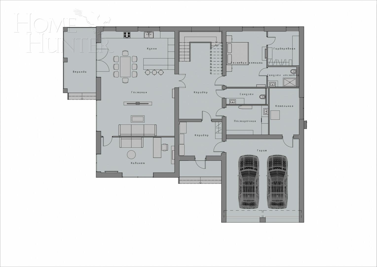
ПЛАНИРОВКА в данном проекте радует своей эргономичностью:
На первом этаже расположен просторный гараж (45 кв.м) с доступом в коридор (11,6 кв.м). Из коридора мы перемещаемся в холл (30 кв.м), где прямо размещена лестница, справа - постирочная (9,7 кв.м), санузел (5 кв.м), гостевая комната (17,8 кв.м) со своим санузлом (4,5 кв.м) и гардеробной (8,5 кв.м). Слева находятся совмещенные кухня (22 кв.м) с выходом на веранду (17 кв.м) и гостиная (39 кв.м) с доступом в кабинет (20 кв.м).
На втором этаже, куда нас ведёт лестница с автоматической подсветкой - холл (25 кв.м), 4 спальни (27,5+19,8+20,6+20,6), каждая из которых оснащена своей гардеробной комнатой, 3 санузла. Из мастер-спальни предусмотрен выход на балкон (16,7 кв.м) с видом на местный ландшафт.
В проекте были использованы следующие МАТЕРИАЛЫ: газобетонные блоки Bonolit D500 400 мм, каменная вата для большей теплоизоляции, немецкая клинкерная плитка для фасада, мягкая черепица для кровли. В интерьере - тканевые натяжные потолки, кварцевый ламинат, керамогранитная плитка, сантехника GROHE, гаражные автоматические ворота DoorHan, панорамные окна REHAU, подсветка на лестнице с датчиками движения, светодиодные ленты по периметру потолков.
ЛАНДШАФТ участка (12 соток), как и стиль дома, лаконичен: по периметру посажены туи, на территории ухоженный газон. Конфигурация участка классическая - прямоугольная форма. Красивые виды на местный ландшафт можно наблюдать из каждой комнаты, оборудованной панорамными окнами.
ИНФРАСТРУКТУРА: Ломоносовская школа (3 км) и Ломоносовский детский сад (3 км), фитнес-клуб Riviera Fitness&SPA (3 км), теннисный клуб Tennis Rublevka (1,5 км),ресторан Remy Kitchen Bakery (1,5 км), магазин ВкусВилл (5 км), Азбука вкуса (9 км), клинический Госпиталь Лапино (9 км), салон красоты Base (4 км). Тем, кто любит природу: всего в 9 км. находится живописный пляж Москвы-реки на Николиной горе и село Иславское, где на реку открывается панорамный вид с холма.
Выбирайте для себя лучшее.
Винидиктов и Партнеры, участник AREA – Ассоциации агентств элитной недвижимости.
Звоните!
Делимся с коллегами 50/50.
Арт. 124646552
































