№152884 ЖК Пречистенка ул., д. 33/19, стр. 2
Квартира в историческом 2-этажном особняке в сердце «Золотой Мили». Клубный дом на 10 квартир хранит обаяние старой Москвы, замедляет ритм города и дарит эту атмосферу жителям.
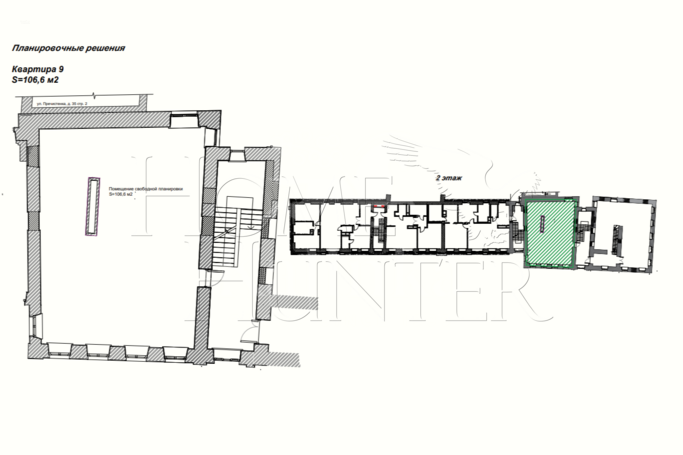
Квартира под чистовую отделку на 2 этаже площадью 106,6 кв.м. Свободная планировка и множество окон позволяет реализовать любые дизайнерские фантазии нового обладателя этой роскошной квартиры. Из окон открывается вид в уютный дворик и на улицу Пречистенка. Памятником архитектурного наследия является внешний периметр здания.
Эксклюзивные окна из дерева дуба с двойными стеклопакетами от Doleta. Премиальная инженерия для безопасности и комфорта: в квартирах установлены система защиты от протечек воды (Gidrolock), приточно-вытяжная вентиляция с механическим побуждением воздуха и увлажнением (RUCK, Германия), охранно-пожарная сигнализация (Schneider Electric), IP-видеонаблюдение и домофония (Mobotix) с просмотром всего периметра здания и входных групп.



























