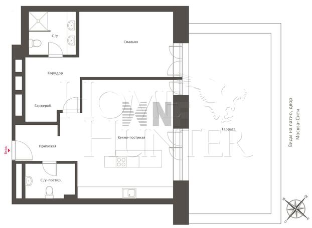
Лот: 47653. В продаже квартира с отделкой и собственной террасой в жилом комплексе премиум-класса Victory Park Residence у Парка Победы площадью 90 м² (из которых квартира 75 м и терраса 50 м² с понижающим коэффициентом 0.3).
Планировка: гостиная-кухня, изолированная спальня с ванной и гардеробной, гостевой санузел.
Квартира оснащена системой приточно-вытяжной вентиляции и кондиционирования.
Высота потолка — 3 м.
Окна выходят в сторону ММДЦ «Москва-Сити».
В комплексе предусмотрен подземный паркинг с возможностью покупки машино-мест.
Victory Park Residence — жилой комплекс премиум-класса на Кутузовском проспекте, построен в 2025 году. Презентабельная входная группа, охрана и видеонаблюдение, собственная инфраструктура.












































































