№199891 ЖК CITY PARK
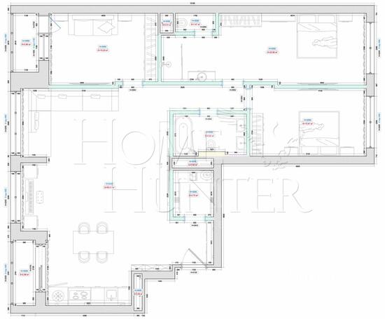
4-х комнатная квартира общей площадью 136 кв. м. в Жилом квартале City Park. C новым премиальным ремонтом, просторной кухней-гостиной и 3 изолированными комнатами. Мастер спальня со своим с/у. Гардеробная комната с постирочной. Большая площадь остекления. Окна во двор и на "Москва Сити". Квартира меблирована, продается с мебелью и предметами интерьера. Все новое. Никто не жил.
В жилом комплексе имеется 2-х уровневая удобная подземная парковка с люксовой автомойкой и детейлингом, супермаркет Азбука вкуса Дейли, частный детский сад Дискавери. Ухоженный и очень большой для района Пресня закрытый внутренний двор с фонтанами, детскими площадками и ландшафтным дизайном, кафе, салонами красоты, химчисткой, стоматологией и т.д. В ЖК собственная котельная. Водоснабжение с чистой водой, без летних профилактических отключений.
Юридическая часть:
- Квартира в собственности более 5 лет.
- Полная стоимость в договоре.
- Один взрослый собственник. Никто не прописан.
- Квартира с чистой историей куплена по договору инвестирования у застройщика.








































