Представляем лучшее предложение в ЖК «Сады Пекина»: апартаменты 141,3 м² на 11-м этаже с панорамными видами на исторический центр Москвы.
Преимущества:
-Панорамный вид на центр
-Свободная планировка
-Отделка Вайтбокс
-2 машиноместа в собственности за отдельную цену.
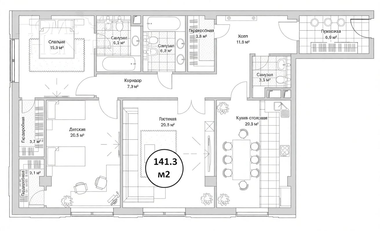
Просторные апартаменты со свободной планировкой и панорамными окнами в пол с ориентацией на северо-восток и юго-запад. Вам открывается возможность воплотить индивидуальный интерьер — все коммуникации уже заведены, предусмотрены 3 санузла для комфорта всей семьи.
Предполагаемое зонирование:
-гостиная — 25,5 м²
-две спальни — 15,9 и 20,5 м²
-кухня-столовая — 20,8 м²
Жилой комплекс «Сады Пекина» — это престижный проект в самом сердце Москвы, где гармонично сочетаются современный комфорт, приватность и особая атмосфера исторического центра столицы.
Комплекс расположен на пересечении 2-й Брестской улицы и Садового кольца, всего в 500 метрах от станции метро «Маяковская». От шума оживленных магистралей его надежно защищает здание легендарной гостиницы «Пекин», сохраняя тишину и уют для жителей.
Архитектурная концепция включает два 13-этажных дома, возведенных по кирпично-монолитной технологии. Пространство двора закрыто от автомобилей. Особая гордость комплекса — благоустроенные цветущие сады и лаунж-зоны на крышах, где открываются захватывающие виды на центр Москвы.
Для удобства и качества жизни жителей в «Садах Пекина» внедрены передовые инженерные решения: централизованная система очистки воды с фильтрами тонкой очистки, интеллектуальная VRF-система кондиционирования LG, а также скоростные лифты Schindler — до шести в каждом корпусе.
Безопасность и сервис здесь на высшем уровне: круглосуточная охрана, современная система контроля доступа и консьерж-сервис обеспечивает жителям максимальное удобство.
Двухуровневый подземный паркинг рассчитан на 427 машиномест.
Инфраструктура комплекса «Сады Пекина» формирует особое пространство для жизни, где все самое важное и ценное — буквально в нескольких шагах.
Вокруг расположены изысканные рестораны и уютные кафе: «Облако», «Чайковский», «Раковая на Маяковке», «Хабурзак», «Fontana».
Для повседневного комфорта рядом находятся продуктовые магазины — «Перекресток», «Вкусвилл» и «Магнолия» и др.
Семьи с детьми оценят богатый выбор образовательных учреждений: школы №1950, «Романовская», №1574 и №1234, а также детские сады, расположенные в шаговой доступности. Здесь созданы все условия для гармоничного развития и воспитания детей.
Любителей искусства и культурных событий: Театр сатиры, Театр имени Моссовета, Московская филармония — всё это буквально рядом с домом.
Для прогулок и отдыха: парк на Триумфальной площади, Сад «Аквариум», Патриаршие пруды, Сад «Эрмитаж» и Тверской бульвар.
Транспортная доступность: комплекс имеет удобный выезд на Садовое кольцо, а ближайшая станция метро «Маяковская» расположена всего в 300 метрах.
Сотрудничаем с коллегами 50/50 Винидиктов и Партнеры - участник ассоциации агентств элитной недвижимости AREA.
Арт. 116271748










































