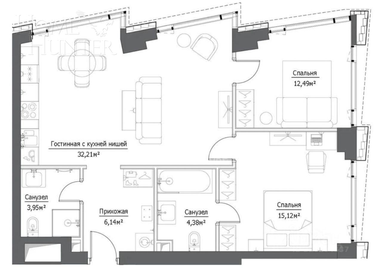
Id 26098. Видовая квартира на 39 этаже в корпусе №1 с видами на Москва СИТИ, Москву-реку, Лужники, Новодевичий монастырь, Воробьевы горы, главное здание МГУ. Отделка от застройщика MR BASE (White box). Свободная продажа. Престижный район Москвы. 5 минут от ТТК и Кутузовского проспекта. У ЖК собственная огороженная и охраняемая территория, лобби с круглосуточным консьержем, подземный и наземный паркинг, спортивный зал, бар, переговорные. Отделка и технические решения соответствуют всем современным тенденциям и технологиям: умный дом, попасть с ключом можно только на свой собственный этаж. 3-х комнатная квартира: 2 спальни и кухня-гостиная,
ЖК Hide (в корпусе West Dale).
Квартира имеет отличную планировку, квадратные метры распределены между комнатами, НИКАКИХ ЛИШНИХ КОРИДОРОВ!!!
Выполнена отделка white box, высота потолков 3,2 м. Так как квартира расположена на высоком этаже, она очень тихая, никакого шума от дорог и придомовой территории. Идеальна, как для проживания (одиноким людям/с семьей), так и для сдачи в аренду.
Комплекс включает всё необходимое для нового уровня жизни (закрытый двор, детские площадки, тренажёрный зал, смотровые площадки на крышах, детский сад, рестораны)
Расположен в западном округе Москвы - престижном и экологичном с развитой инфраструктурой.
Свободная продажа, один взрослый собственник, документы проверены, подходит под ипотеку.


















































































































