Лот 63163 Дмитрий Зигануров
Предлагается уникальный пентхаус с великолепной террасой и завораживающим панорамным видом на Москву! Без отделки, что даёт возможность сделать свой дизайн-проект!
Дом построен в 2003 г, 7 этажный, подъездов: 2, лифтов: 4. Здание построено по индивидуальному проекту компанией Insigma.
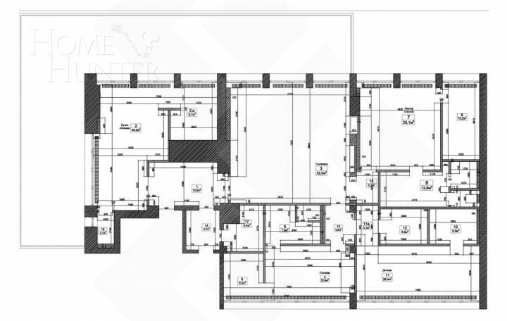
Высокие потолки 3,3 м. Идеальное зонирование: кухня, гостиная с дровяным камином, 3 изолированные комнаты с с/у, гардеробные.
Единственный на этаже, свой лифт. Свободная продажа.
ЖК расположен в историческом районе Москвы, в тихом переулке, где царит атмосфера старины, уюта, покоя и умиротворения.
Во дворе высажен дикий виноград, закрывающий территорию от посторонних глаз. На внутренней территории ЖК проводятся камерные вечера и концерты живой музыки. В комплексе всего 25 квартир.
Тренажерный зал, бассейн (18 м.), сауны, солярий, детская игровая площадка. Собственная служба эксплуатации. Огороженная охраняемая территория, благоустроенный внутренний двор с ландшафтным. Собственная служба охраны, видеонаблюдение.
Оперативный показ в приоритетное время! Участник AREA. Номер в базе: J37357

























































