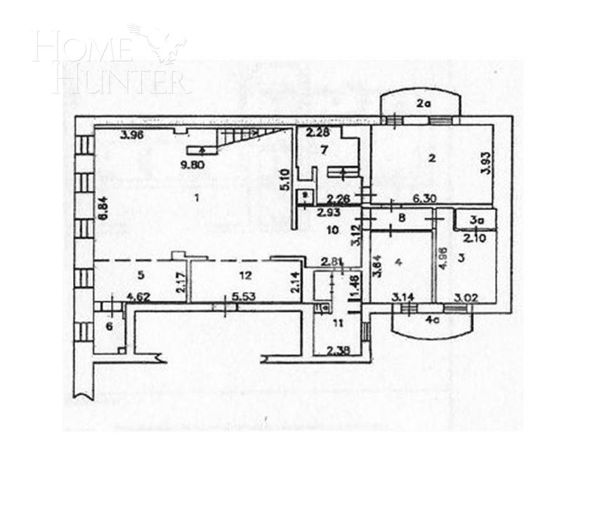
Лот: 17188. 2-х уровневый пентхаус с пространством на крыше клубном современном доме на 13 квартир. Дом полностью перестроен. В пентхаусе выполнен дизайнерский ремонт, в гостиной второй свет. Мебель и техника включены в стоимость.






















Общая площадь
251 м2
Жилая площадь
199 м2
Площадь кухни
30 м2
Террас
1
Этаж
5
Этажность
5
Комнат
5
Спален
3
Санузлов
2
Балконов
2
Высота потолков
до 6
Гардеробных
1
Отделка
С отделкой
Дизайн интерьера
Современный
Кухня
Кухня-гостиная
Второй свет
Есть
Кладовая
Есть
Лот: 17188. 2-х уровневый пентхаус с пространством на крыше клубном современном доме на 13 квартир. Дом полностью перестроен. В пентхаусе выполнен дизайнерский ремонт, в гостиной второй свет. Мебель и техника включены в стоимость.












































Город
Загород
Поиск
Поиск
Коллекции
Коллекции
История
Просмотрено
Валюта
Валюта
Создание коллекции
Редактирование коллекций
Добавить в коллекцию
Записаться на просмотр
Оставить жалобу
Следить за ценой