Лот №39959. Таунхаус под ключ 291 кв.м. на участке 2.69 соток. Количество спален: 4. Коттеджный посёлок «Парк Авеню», Новорижское шоссе, 25 км от МКАД. Участок, придомовая территория, газон, по периметру посажены большие туи обеспечивая приватность. Коттеджный поселок "Парк Авеню". Новый таунхаус, полностью под ключ, меблирован. Отделка выполнена из дорогостоящих материалов.
Интерьер современный, со вкусом подобранные мебель и предметы интерьера, панорамные окна добавляют много света в помещения. Особо уделено внимание комнатам для детей, игровой.
Все коммуникации центральные, установлены системы вентиляции и кондиционирования, так же система умный дом.
Поселок строго охраняемый, широкие улицы, озеро с живописным парком, зонами отдыха, детскими и спортивными площадками. К услугам жителей все инфраструктурные объекты коттеджных поселков Villagio Estate, среди которых детские сады, семейные клубы, кафе, рестораны, магазины, салоны красоты, пляж у озера и многое другое.
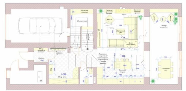
Планировка дома: 1 этаж: прихожая с системами хранения, просторная кухня-гостиная и
столовая с выходом на участок, гараж и постирочная, с/у.
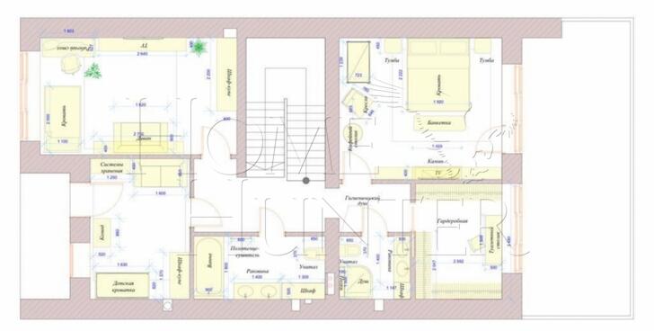
2 этаж: мастер блок состоящий из спальни, гардероба, с/у и просторной крытой веранды. Детская игровая - спальня, вторая детская и с/у.
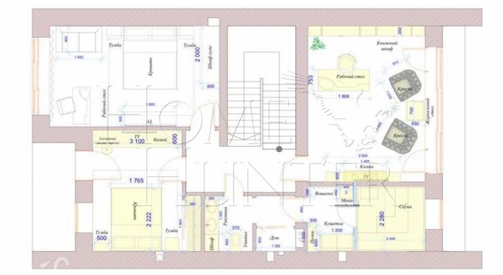
3 этаж: кабинет, две детские, с/у с сауной.















































