Лот 48181.
Дом расположен в элитном коттеджном посёНиколино. Дом в Николино — 760 м² элегантного комфорта всего в 20 минутах от Москва-Сити.
Идеальная локация для тех, кто выбирает тишину загородной жизни без потери городского ритма. Закрытый инфраструктурный посёлок премиум-класса, благоустроенные дороги, охрана, центральные коммуникации, уютные прогулочные зоны с лесом и озером — всё продумано до мелочей. Современная архитектура, большие панорамные окна, гармоничные линии фасада и дизайнерская премиум-отделка внутри. Натуральные материалы, мягкий свет, камень, дерево и металл в идеальном балансе создают атмосферу современного спокойствия и статуса. Планировка спроектирована для жизни без компромиссов: * Просторная гостиная с камином и вторым светом * Кухня-столовая с выходом на террасу * Четыре спальни, каждая со своим санузлом и гардеробной * Блок для персонала с отдельным входом * Гараж на два автомобиля Участок 16 соток — с выполненным ландшафтным дизайном. Вид на лес с заднего двора. Это не просто дом — это пространство, где архитектура, свет и природа живут в едином ритме.
Дом, в котором хочется оставаться.лке «Николино», в 25 минутах от Москва-Сити по платной дороге М-1 и проспекту Багратиона.
В 10 минутах на машине — стародачное место «Николина гора» и живописный берег Москвы-реки.
Интерьеры выдержаны в спокойной цветовой гамме, где камень, дерево и металл гармонично сочетаются между собой. Коттедж полностью готов к проживанию: каждая деталь — от изящных люстр и тщательно подобранного
декора до стильной мебели и встроенной техники — продумана для комфорта.
Современная система кондиционирования поддерживает идеальный микроклимат в любое время года, а панорамное остекление наполняет дом естественным светом и ощущением единства с природой.Просторная гостиная с камином плавно переходит в кухню столовую с удобным островом — это пространство, где приятно проводить время и принимать гостей. Для отдыха спланированы четыре уютные спальни с вместительными гардеробными.
В доме также предусмотрены квартира для персонала с отдельным входом и встроенный гараж на два автомобиля.
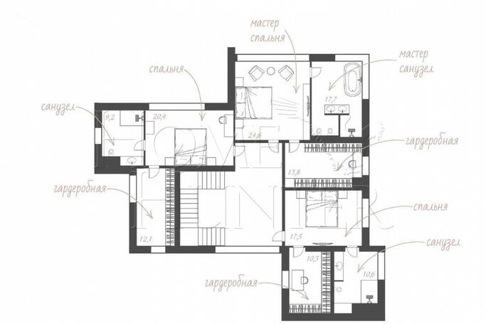
1 этаж: прихожая, санузел, гардеробная, гостиная, кухня, столовая с выходом на террасу, спальня с гардеробной и санузлом, постирочная, кладовая, гараж, терраса, блок для персонала
2 этаж: мастер - спальня с санузлом и гардеробной, спальня с гардеробной и санузлом - 2
Элитный поселок «Николино» покорит роскошью и богатством природы, колоритным ландшафтным дизайном и живописными пейзажами. Расположился в Одинцовском районе вблизи Рублево-Успенского шоссе, в 24 км от МКАД. Территория «незагрязненной экологии» площадью в 150 га вместила более 200 изумительных коттеджей и земельных участков. Окружен комплекс хвойно-реликтовым лесом, княжескими и графскими старинными усадьбами, чистейшими природными озерами. «Картинные» озера и тихие аллеи, уютные беседки с элегантными скульптурными композициями и декоративные фонтаны, присутствие «живой» зеленой изгороди и яркого уличного освещения, широкие брусчатые и асфальтированные дороги – одни из главных достоинств «Николино».
Дом расположен в элитном коттеджном посёНиколино. Дом в Николино — 760 м² элегантного комфорта всего в 20 минутах от Москва-Сити.
Идеальная локация для тех, кто выбирает тишину загородной жизни без потери городского ритма. Закрытый инфраструктурный посёлок премиум-класса, благоустроенные дороги, охрана, центральные коммуникации, уютные прогулочные зоны с лесом и озером — всё продумано до мелочей. Современная архитектура, большие панорамные окна, гармоничные линии фасада и дизайнерская премиум-отделка внутри. Натуральные материалы, мягкий свет, камень, дерево и металл в идеальном балансе создают атмосферу современного спокойствия и статуса. Планировка спроектирована для жизни без компромиссов: * Просторная гостиная с камином и вторым светом * Кухня-столовая с выходом на террасу * Четыре спальни, каждая со своим санузлом и гардеробной * Блок для персонала с отдельным входом * Гараж на два автомобиля Участок 16 соток — с выполненным ландшафтным дизайном. Вид на лес с заднего двора. Это не просто дом — это пространство, где архитектура, свет и природа живут в едином ритме.
Дом, в котором хочется оставаться.лке «Николино», в 25 минутах от Москва-Сити по платной дороге М-1 и проспекту Багратиона.
В 10 минутах на машине — стародачное место «Николина гора» и живописный берег Москвы-реки.
Интерьеры выдержаны в спокойной цветовой гамме, где камень, дерево и металл гармонично сочетаются между собой. Коттедж полностью готов к проживанию: каждая деталь — от изящных люстр и тщательно подобранного
декора до стильной мебели и встроенной техники — продумана для комфорта.
Современная система кондиционирования поддерживает идеальный микроклимат в любое время года, а панорамное остекление наполняет дом естественным светом и ощущением единства с природой.Просторная гостиная с камином плавно переходит в кухню столовую с удобным островом — это пространство, где приятно проводить время и принимать гостей. Для отдыха спланированы четыре уютные спальни с вместительными гардеробными.
В доме также предусмотрены квартира для персонала с отдельным входом и встроенный гараж на два автомобиля.
Конструкция дома: монолит-кирпич
Материалы крыши: плоская крыша
Ремонт: под ключ с мебелью
Тип участка: полевой, прилесной
Газ: магистральный
Электричество, кВт: 15
Канализация: центральная
Водоснабжение: центральное




































































