Просторная 4-х комнатная квартира с роскошным видом на столицу!
Квартира без ремонта, что позволяет воплотить любые идеи по дизайну уже сегодня!
Преимущества:
-3 балкона с панорамным видом на Москву;
-Окна выходят на восточную и южную сторону, что позволяет наслаждаться рассветом и изобилием солнечного света;
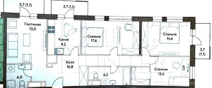
-Функциональная планировка для комфорта большой семьи (3 спальные комнаты, кухня, просторная гостиная, 2 санузла, 3 балкона);
-На этаже 4 квартиры - идеальное сочетание тишины и приватности;
-Стяжка пола залита и готова к финишному покрытию;
-Высокие потолки 3,1 м создают ощущение пространства и свободы.
Общая площадь с учетом балконов: 107 кв.м
Дополнительно к продаже предлагается машиноместо 18,2 кв.м.
ЖК «Символ» – это масштабный проект бизнес-класса в районе Лефортово, построенный на территории бывшего завода «Серп и Молот». Он реализует концепцию «город в городе» с собственной инфраструктурой, включая школы, детские сады, магазины, рестораны и спортивные объекты.
ЖК «Символ» обладает хорошей транспортной доступностью благодаря близкому расположению к основным магистралям и станциям метро.
До метро «Площадь Ильича», «Авиамоторная» и «Римская» можно дойти пешком за 6–10 минут.
В нескольких минутах езды проходят крупные автомагистрали: Третье Транспортное Кольцо и шоссе Энтузиастов, что обеспечит удобное транспортное сообщение со всеми частями Москвы. Отсюда около 5 км до Кремля, 1,5 км до Садового кольца, менее 1 км до Золоторожской набережной р. Яузы и до Лефортовского парка.
Инфраструктура:
ЖК Символ имеет уникальную концепцию общественных пространств внутри кварталов. Он отличается развитой и сложившейся инфраструктурой.
Образование:
-Бауманская инженерная школа № 1580;
-3 детских сада - «Центр развития Подкова», «Sun School с углубленным изучением Английского», «Ковчег, дошкольное отделение № 4».
Отдых на природе:
-Парк «Зеленая Река»;
-Парк «Лефортово».
Фитнес - клубы:
-World Class Лефортово;
-Xfit Авиамоторная;
-DDX Fitness.
Развлечения:
-Концертная площадка «МТС Live Холл»;
-ТРЦ «Город Лефортово»;
Благодаря разделению уличных территорий на функциональные зоны и наличию собственного парка, занимающего примерно 40% общей территории комплекса, жильцы смогут всегда наслаждаться близостью природы.
Квартира с панорамным видом на современную Москву – это больше, чем просто недвижимость. Это инвестиция в образ жизни, полный вдохновения и возможностей. Откройте для себя новые горизонты, записывайтесь на просмотр и оцените все преимущества этой уникальной квартиры!
“Винидиктов и Партнеры - участник ассоциации агентств элитной недвижимости AREA. Гарантия качества”.
Арт. 120881676











































