ID: 561320
Видовой 2-уровневый пентхаус с камином и двумя террасами в клубном доме класса de luxe «Молочный, 7» на Золотой миле.
В квартире выполнена отдела с неоклассическом стиле.
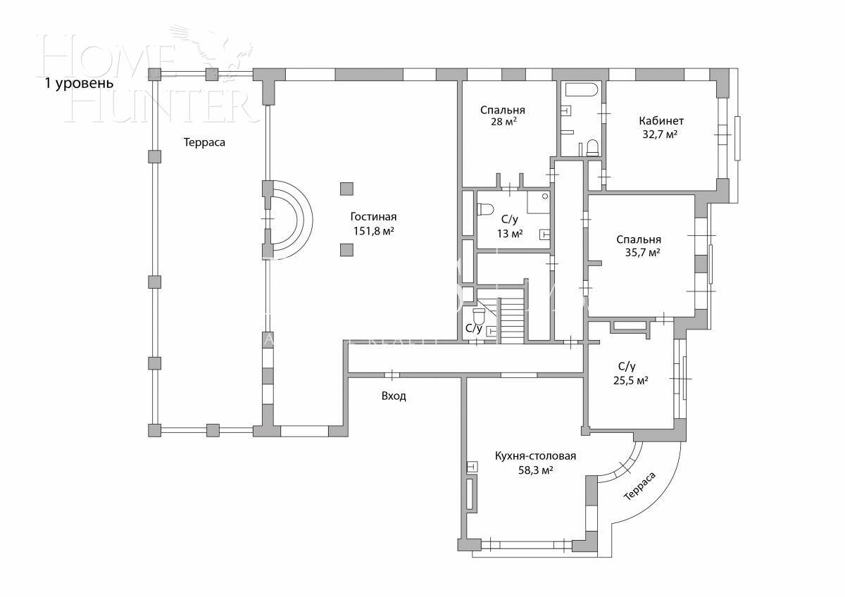
1 уровень: гостиная с камином, библиотекой и выходом на большую террасу, кухня-столовая с малой террасой, 2 спальни, кабинет, 4 санузла.
2 уровень: гостиная зона, небольшая кухня, 2 спальни с санузлами и гардеробными.
Квартира меблирована, оборудована современной бытовой техникой от ведущих мировых производителей, укомплектована предметами интерьера и готова к проживанию.
Из окон открываются прекрасные виды на исторический центр Москвы, Храм Христа Спасителя. Высокие потолки 3.5м.
В клубном доме всего 7 квартир. Огороженная территория, подземный паркинг, многоуровневая система охраны.
Развитая инфраструктура центра столицы: рестораны и магазины Остоженки, Арбата, образовательные учреждения, музеи и картинные галереи. В пешей доступности находится Кремль, Пречистенская набережная.
Участник ассоциации AREA.




























































































































