ID: 587447
Продается новый загородный дом Lion King 518 кв.м. на участке 21,8 соток. 65 км. от МКАД по Новорижскому шоссе.
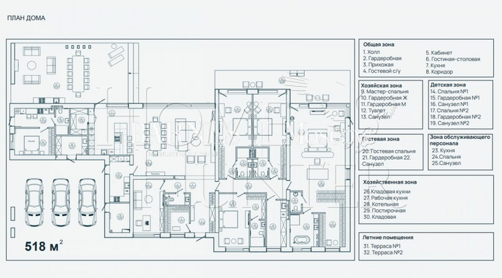
Планировка:
холл, гардеробная, с/у, кабинет, гостиная-столовая с панорамными окнами и камином, кухня с выходом на террасу (столовая зона с мини-кухней, зона отдыха с камином), комната хранения, рабочая кухня, мастер-спальня с гардеробной, с/у, и выходом на террасу, 2 спальни с с/у и выходом на террасу, спальня с с/у, кладовая, котельная, квартира для персонала (спальня, кухня/гостиная, с/у), навес на 3 м/м.
Коммуникации центральные.
Участок ровный, прилесной, с множеством хвойных деревьев и ландшафтными работами: газон, дорожки, освещение, декоративные насаждения.

































