ID: 558755
Продаётся роскошный двухэтажный особняк с 5 спальнями в тихой части элитного коттеджного посёлка Ренессанс Парк под Москвой, полностью готовый к заселению. Этот дом под ключ с мебелью уже завтра будет радовать вас и вашу семью впечатляющим уровнем комфорта и необыкновенной безмятежностью спокойной загородной жизни.
Оснащённый самой современной бытовой техникой и дизайнерской мебелью, этот коттедж рядом с лесом подарит вам ощущение гармонии с природой и самим собой всего в 20 минутах от МКАД по Новорижскому шоссе.
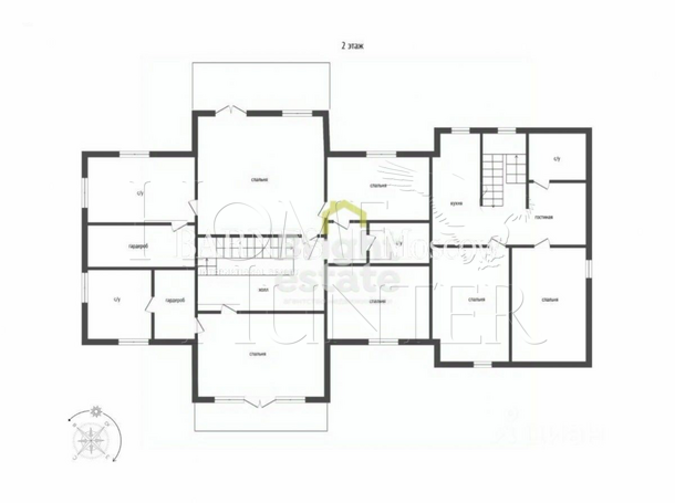
Классический особняк рядом с лесом общей площадью 610 м2 спроектирован с учётом самых разных интересов. Планировка включает в себя каминную зону в гостиной, кабинет для работы, сауну с зоной СПА, помещение для персонала. Спальни с тремя гардеробными и ванными комнатами находятся на 2 этаже.
В здании имеется балкон и выход на террасу. Архитектура в классическом стиле с колоннами, балюстрадой, большим крыльцом и портиком придаёт дому черты традиционной русской усадьбы. Здание величественно и благородно, создавая идеальную атмосферу для воспитания детей. Участок площадью 23 сотки при желании позволяет найти место как для пикника, так и для подвижных игр.
Обратите внимание на инженерные коммуникации в доме.
Планировка включает:
на первом этаже - холл, кухня, столовая, гостиная, терраса, кабинет, прихожая, санузел, постирочная, гараж, котельная;
на втором этаже - холл, 2 спальни с гардеробными и санузлом, 2 спальни, санузел.
Не упустите возможность стать владельцем этого роскошного особняка!












































































