Арт. 70324109
Вашему вниманию представлен двухэтажный дом 551,3 кв.м. на земельном участке 15,32 соток в коттеджном поселке Аврора на берегу канала имени Москвы всего в 12 км от МКАД по Дмитровскому шоссе. Дом построен в 2024 году.
Архитектурный стиль дома включает просторные геометрические формы, панорамное остекление, создавая атмосферу гармонии и естественности.
Проект дома продуман до мелочей, даже предусмотрена отдельная спа-зона с выходом на террасу.
На участке площадью 15,32 соток расположен дом площадью 551,3 кв.м. с гаражом на два машиноместа с высотой потолка 4,5 метра. Площадь дома указана с учетом площади террас и балконов.
Внутренняя отделка дома доведена до чистовой: подключена электрика и отопление, отштукатурены стены, установлен котел фирмы Ferroli (Италия).
При строительстве использовались материалы высокого качества: фундамент свайно-ростверковый с монолитной плитой (бетон марки М350), плиты перекрытия также монолитные. Стены дома возведены из газобетонных блоков марки Bonolit D500. Крыша выполнена из металлочерепицы Grandline, окна из алюминиевого профиля Alutech, утеплитель кровли - технониколь 250 мм, фасадный утеплитель - технониколь 100 мм.
Фасад облицован камнем малахит, а фасадные планкены выполнены из лиственницы и покрыты масло-воском Pinotex.
На ровном участке 15,32 соток уложен рулонный газон, вымощены дорожки. Забор выполнен из габионной оцинкованной сварной сетки с наполнением бутовым камнем.
Наличие всех центральных коммуникаций позволит наслаждаться всеми необходимыми удобствами и комфортом. Также имеется оптоволоконный кабель для подключения интернета.
Приятным дополнением является наличие готового дизайн-проекта и помощь от застройщика с отделочными работами. Дизайн-проект также включает в себя ландшафтный дизайн с возможностью установки бассейна.
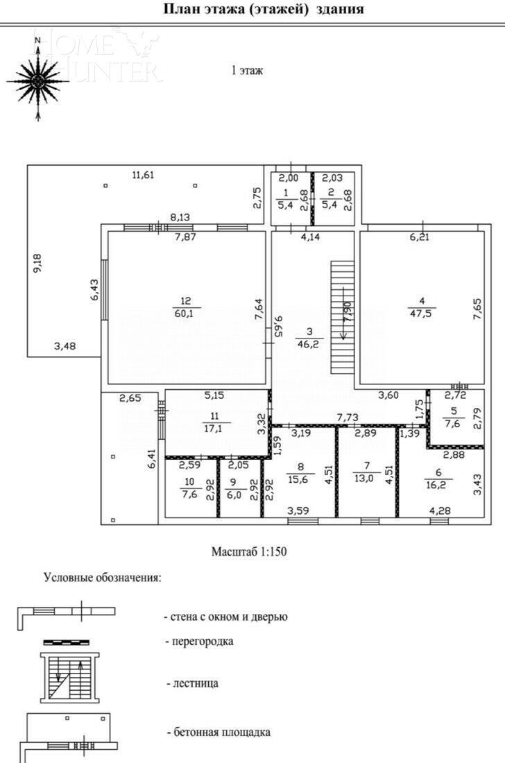
Планировка:
Первый этаж: Прихожая, коридор, кухня, гостиная-столовая с выходом на террасу, банный комплекс с зоной отдыха, санузлом и выходом на террасу, гардеробная, постирочная, санузел, гараж на два машиноместа, котельная.
Второй этаж: мастер-спальня с санузлом и балконом, спальня с санузлом, кабинет, гардеробная, спальня с балконом, детская спальня, гостевая спальня, санузел.
Коттеджный поселок Аврора находится на берегу канала имени Москвы и Пяловского водохранилища. 12 километров от МКАД по Дмитровскому шоссе — и каменные джунгли сменяются гармоничными пейзажами северного Подмосковья. КП Аврора с трех сторон окружен хвойным лесом, а из акватории местного яхт-клуба открыт доступ в воды сразу нескольких подмосковных водохранилищ.
По набережной вдоль канала популярны прогулки до зоны отдыха Новосельцево. Живописный маршрут проходит через зеленый бор с беседками для пикников, а в Новосельцево отдыхающих ждут песчаный пляж, мангальные зоны, волейбольные площадки и летний ресторан.
Собственникам недвижимости в коттеджном поселке Аврора доступна вся инфраструктура Мытищинского района Московской области. Решить бытовые вопросы, сделать покупки и развлечься можно в торговом центре “Пять планет”. Заняться своим здоровьем и отдохнуть — в любом из ближайших санаториев. Насладиться крутизной снежных трасс — на известных горнолыжных курортах Подмосковья.
















































































