Арт. 123142721
Вашему вниманию представлен НОВЫЙ одноэтажный дом пдощадью 450 кв. м на прилесном участке площадью 24 сотки в охраняемом коттеджном поселке "Зеленая Роща-1", расположенном в 33 км от МКАД по Минскому шоссе.
Дом полностью готов для постоянного проживания, есть вся необходимая мебель и встроенная техника.
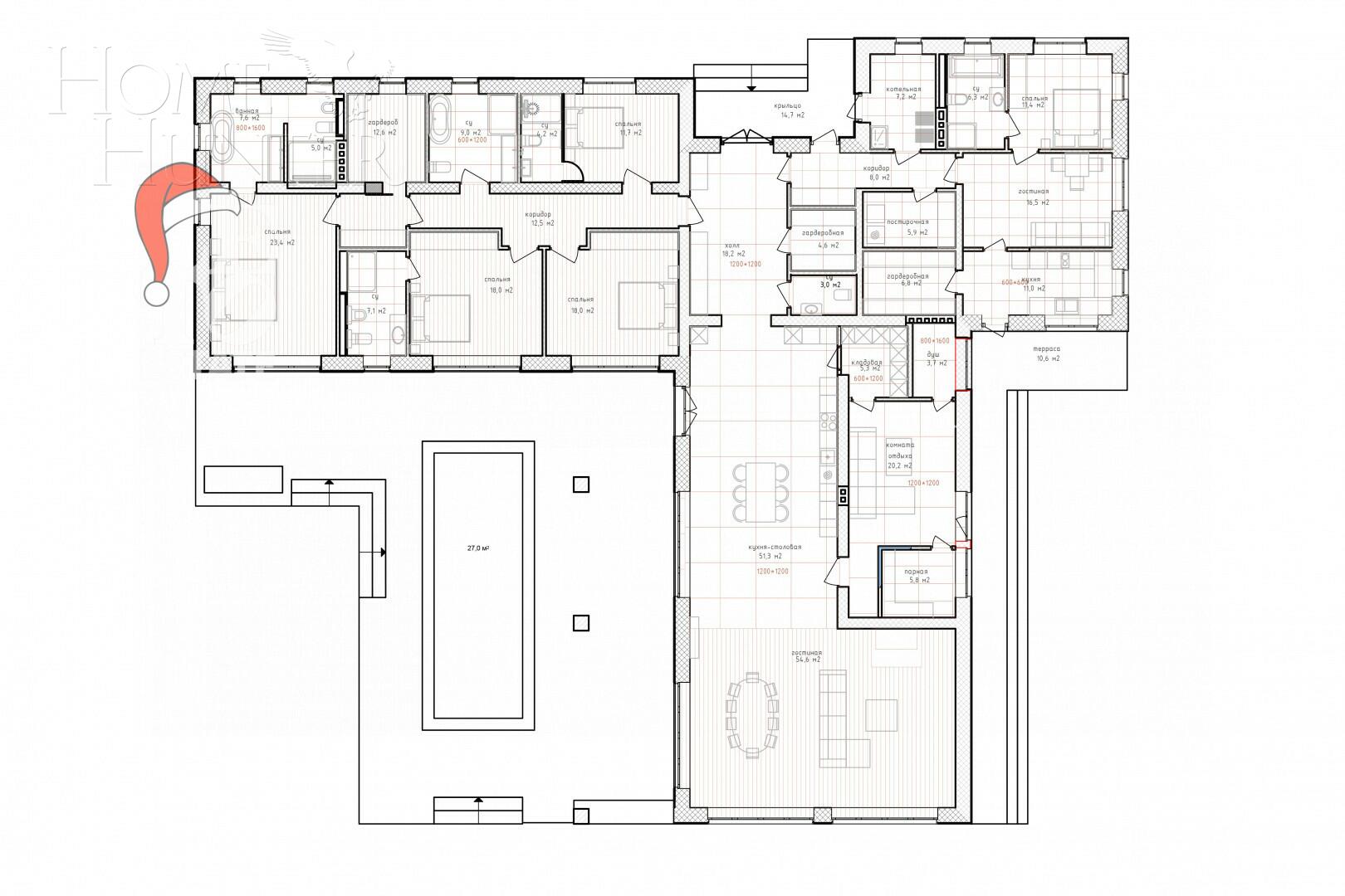
В доме 5 спален, каждая со своим санузлом. Из гостиной с камином есть выход на участок к бассейну 9х3 метра. Дополнительно обустроена спа-зона с финской сауной и зоной отдыха. Панорамное остекление и потолки высотой 4 метра добавляют пространства и света.
В доме все коммуникации - центральные: газоснабжение, электроснабжение, холодное водоснабжение и канализация. Организована котельная, установлено оборудование.
На участке выстелен газон, организована зона парковки на несколько автомобилей. Возможно увеличить участок за счет смежного участка до 48 соток. Территория полностью огорожена, установлены ворота с электроприводом.
Планировка:
Прихожая, гардеробная, гостевой санузел, кухня-гостиная-столовая, гостевой блок: спальня, санузел с душевой, гостиная, кухня, гардеробная, постирочная, котельная. Зона отдыха с душевой и сауной. Три спальни со своими санузлами. Мастер-блок: спальня, гардеробная, санузел с ванной и душевой.
Зелёная Роща-1 находится на расстоянии 33 км от МКАД по Минскому шоссе.
Инфраструктура КП «Зелёная Роща-1» включает в себя все центральные коммуникации - газ, электричество, вода, канализация, телефония, интернет, развитую сеть дорог с твёрдым покрытием. Въезд на территорию охраняемый, КПП.
На территории расположены: несколько детских площадок, продуктовых и хозяйственных магазинов, парикмахерская, аптека, маникюрный салон, спортзал, хоккейное поле, церковь, пекарня, шиномонтаж.
Чёткая работа коммунальных служб позволяет зеленорощенцам круглый год наслаждаться жизнью на лоне природы. Систематический санитарно-эпидемиологический контроль качества воды собственного водозаборного узла и канализование жидких бытовых отходов на очистные сооружения посёлка Голицыно, обеспечивают экологическую безопасность проживания на территории Зелёной Рощи.
Развитая инфраструктура района в 5-7 минутах езды на автомобиле: рестораны, бутики, продуктовые магазины и торговые центры, бассейн, прекрасный детский садик. На территории поселка находится администрация и службы эксплуатации. Чёткая работа коммунальных служб позволяет зеленорощенцам круглый год наслаждаться жизнью на лоне природы.
Систематический санитарно-эпидемиологический контроль качества воды собственного водозаборного узла и канализование жидких бытовых отходов на очистные сооружения посёлка Голицыно, обеспечивают экологическую безопасность проживания на территории Зелёной Рощи.
Отличная транспортная доступность позволяет разными способами добраться до поселка. В шаговой доступности расположена автобусная остановка у церкви. От неё можно доехать до станции Голицыно или до Одинцово (это МЦД-1). От станции можно доехать до метро Кунцево, Фили, Белорусская, Савеловская.

































































































