Лот 47609.
Новый современный дом «под тапочки» со вторым светом из бруса северного леса.
Это сочетание дизайнерского ремонта, качественных материалов и стремления к единению с природой.Материалы и конструкция- Стены: профилированный клеёный брус 270×204 мм.- Фундамент: монолитная ж/б плита с обратным ростверком.- Наружная отделка: масло Biofa,
внутренняя — шлифовка + масло Osmo.- Окна: тройной стеклопакет.- По всему дому — тёплый пол.- Смонтированы дренаж и ливневая канализация.- Навес из клеёного бруса с автоматическими воротами.Планировка и архитектурные решения- Второй свет, панорамные окна и безрамное остекление фахверка обеспечивают максимальное естественное освещение.- Стеклянный раздвижной портал на террасу и легкое раздвижное остекление делают террасу продолжением жилого пространства.- Терраса и автомобильный навес увеличивают функциональную площадь первого этажа.Этот дом гармонично вписан в ландшафт и готов к проживанию сразу — идеален для тех, кто ценит качество, комфорт и связь с природой.
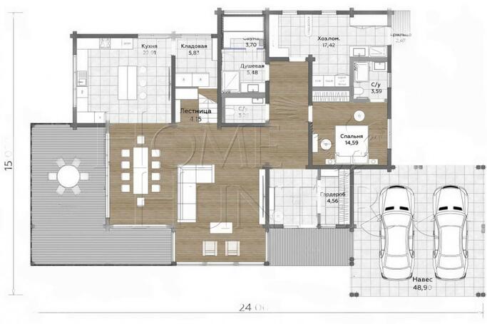
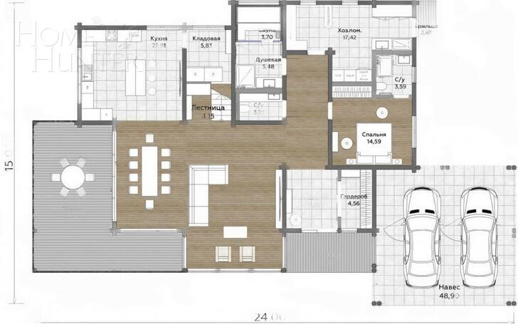
1 этаж: прихожая, гардеробная, холл, санузел, гостиная со вторым светом, столовая с выходом на террасу, терраса, столовая, кладовая, спальня с санузлом, сауна, душевая, техническое помещение
2 этаж: холл, мастер - спальня с санузлом и гардеробной, спальня с гардеробной, кабинет, санузел
Редкая возможность стать резидентом современного поселка бизнес-класса. Безопасность, стиль и комфорт - это основополагающие факторы, которые учитывались при строительстве.
Новый современный дом «под тапочки» со вторым светом из бруса северного леса.
Это сочетание дизайнерского ремонта, качественных материалов и стремления к единению с природой.Материалы и конструкция- Стены: профилированный клеёный брус 270×204 мм.- Фундамент: монолитная ж/б плита с обратным ростверком.- Наружная отделка: масло Biofa,
внутренняя — шлифовка + масло Osmo.- Окна: тройной стеклопакет.- По всему дому — тёплый пол.- Смонтированы дренаж и ливневая канализация.- Навес из клеёного бруса с автоматическими воротами.Планировка и архитектурные решения- Второй свет, панорамные окна и безрамное остекление фахверка обеспечивают максимальное естественное освещение.- Стеклянный раздвижной портал на террасу и легкое раздвижное остекление делают террасу продолжением жилого пространства.- Терраса и автомобильный навес увеличивают функциональную площадь первого этажа.Этот дом гармонично вписан в ландшафт и готов к проживанию сразу — идеален для тех, кто ценит качество, комфорт и связь с природой.
Конструкция дома: клеёный брус
Материалы крыши: мягкая кровля
Ремонт: под ключ с мебелью
Тип участка: полевой, около воды
Газ: магистральный
Электричество, кВт: 15
Канализация: центральная
Водоснабжение: центральное














































































