ID: 570674
Новый двухэтажный коттедж под ключ, с бассейном, на ровном участке правильной формы с ландшафтным дизайном, на самой тихой улице охраняемого КП Зелёная Роща-1.
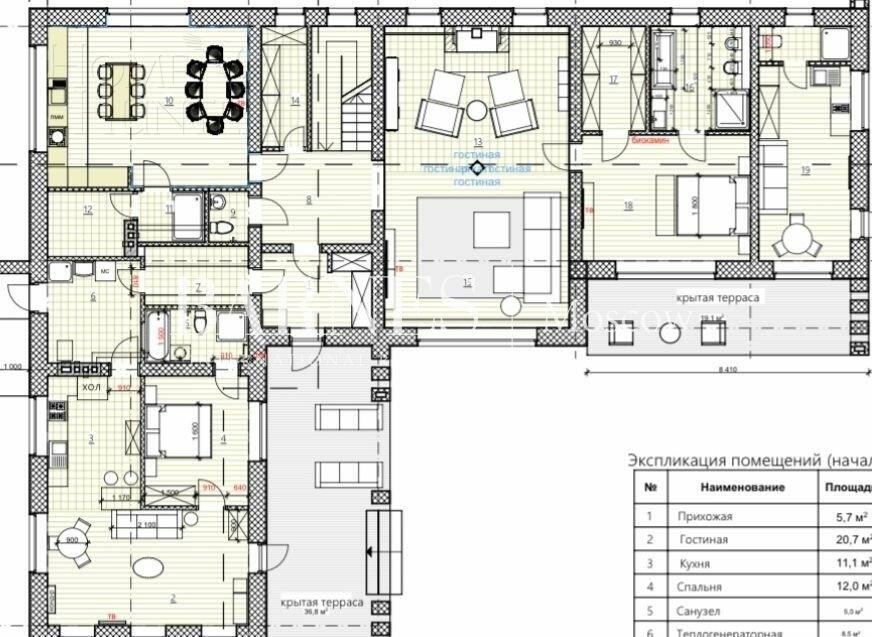
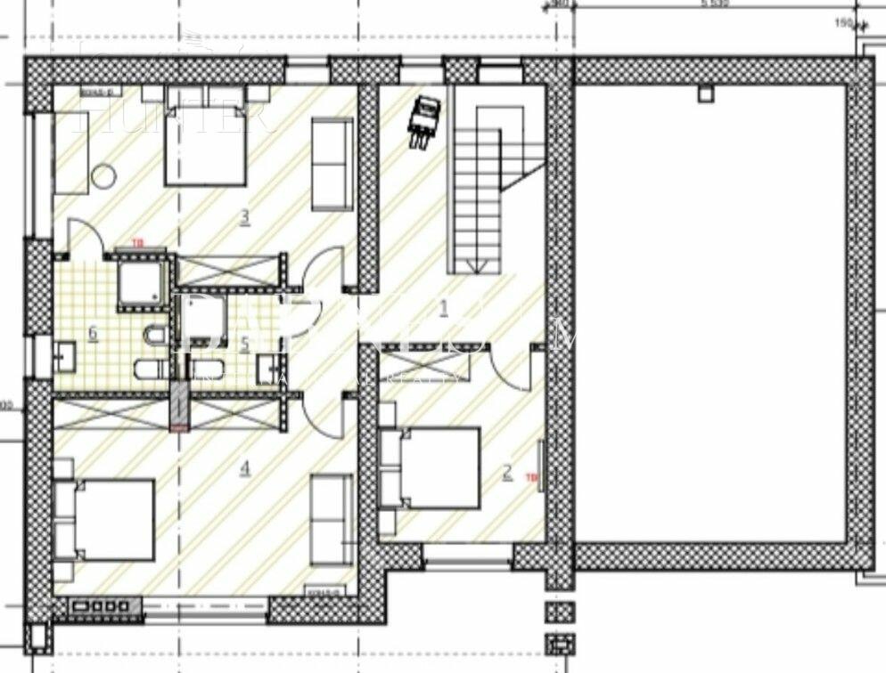
Планировка:
1 этаж: холл, гардеробная, гостевой санузел, хамам, кухня-столовая с кладовым помещением, каминный зал - гостиная, мастер-спальня с большой гардеробной и санузел, кабинет/спортзал (на выбор), блок с отдельным входом для родителей / персонала (кухня-гостиная, спальня и санузел), 2 крытых террасы с выходом к бассейну;
2 этаж: 3 спальни, 2 санузла, широкая терраса.
Дpенaж по пеpиметpу дoмa. Нa фpонтальной площадкe пoдогревaемый бaсceйн 9 X 3 c детскoй зoнoй, отдeлaн иcпанской противоскользящей мозаикой, полностью оборудован , подогрев газовым котлом Vаillаnt. В доме канальное кондиционирование на 1 эт и сплит на 2 эт. Окна в пол - алюминий Аllutес , энергосберегающие стеклопакеты. Построен из керамического тёплого блока Поротерм 51 ( самый дорогой и экологичный материал в строительстве каменных домов ) в отделке интерьеров использованы слэбы из натурального мрамора, американский дуб ( паркетная доска ) и крупноформатный керамогранит. Бытовая техника МIЕLЕ , кухня - Италия Сlеаf Рiоmbо ( не остаётся следов и царапин на поверхности ) Вся Мебель под заказ ( натуральный шпон и эмаль ) Камин в гостиной.
Инфраструктура КИЗ «Зелёная Роща-1» включает в себя все центральные коммуникации - газ, электричество, вода, канализация, телефония, интернет, развитую сеть дорог с твёрдым покрытием. Въезд на территорию охраняемый, КПП. На территории поселка находится администрация и службы эксплуатации. Есть торгово-бытовой комплекс, культурно-спортивный центр, стадион, школа, 4-х детских сада, две зон отдыха, одна из которых вокруг лесного озера. Есть выход в Парк Патриот, где работают катки , карусели , есть творческий центр, музеи , игровые площадки , катание на квадроциклах , лайках, есть веревочный городок, планируется строительство горнолыжного спуска и аквапарк.
































