Арт. 109961307
Вашему вниманию представлен готовый дом с бассейном в КП "Нагорье-12", расположенный в 5 км от МКАД по Куркинскому шоссе.
Дом построен из кирпича, перекрытия - бетонные, крыша - металлочерепица. Есть вся необходимая встроенная техника и мебель для постоянного проживания. В доме 4 спальни, одна из которых расположена на первом этаже. Также есть кабинет. В цоколе находится СПА-зона с сауной, джакузи и бассейном. Летними вечерами большая терраса с печью будет местом сбора всей семьей. Даже когда вокруг прохладно и будет идти дождь, здесь будет уютно и тепло.
Организована котельная, установлено газовое оборудование, система водоподготовки и водоочистки. Разведены теплые полы на втором этаже в санузлах. В каждой спальне установлены системы кондиционирования. Продуманная планировка позволит разместиться большой семье.
Помимо основного дома на участке построен теплый гараж на два автомобиля, на втором этаже находится квартира-студия для персонала с кухней, спальней, санузлом и душем.
Вокруг дома и на территории участка выполнена дренажная система, которая обеспечивает эффективный отвод воды, предотвращая образование луж и подтоплений, что особенно важно в дождливую погоду и в период весеннего таяния снега. Ландшафтный дизайн поражает своим многообразием: декоративные кустарники, растения, плодовые деревья. По периметру участка сделан автополив. Также есть зона для организации летнего отдыха с живописным прудом. Вымощенные брусчаткой дорожки не только делают перемещение по участку комфортным, но и добавляют ему эстетической привлекательности. Дом утопает в зелени, что создает ощущение уединения и комфорта. На придомовой территории дополнительно организована большая парковка. Въездные ворота, оборудованы электроприводом, что обеспечивает удобный и быстрый доступ на участок.
Если у Вас остались вопросы - звоните!
Агентство недвижимости "Leto Estate" организует просмотр дома в любое удобное для Вас время!
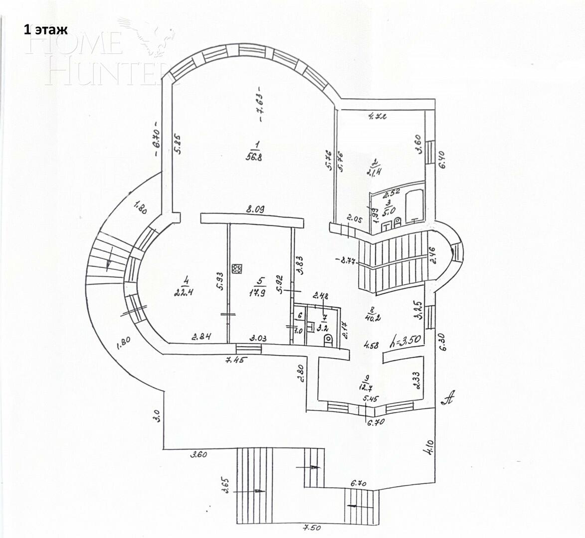
Планировка:
Цокольный этаж: постирочная, санузел, спортивный зал/бильярдная/кинозал, котельная, кладовая комната, зона СПА: сауна, джакузи, бассейн 7*3, душ
Первый этаж: прихожая, гостевой санузел, столовая, кухня, гостиная, спальня с санузлом и душевой
Второй этаж: две спальни со своими гардеробными и санузлами с ванной, кабинет, мастер-спальня с гардеробной и санузел с ванной и душем
Поселок “Нагорье-12” расположен всего в 5 км. от МКАД по Куркинскому шоссе в мкр. Новогорск. Шикарное расположение позволяет добраться до поселка также по Ленинградскому шоссе. На лесной территории расположено 40 домов, построенные по индивидуальным проектам которые органично вписаны в уникальный природный ландшафт. Все дороги в поселке асфальтированные. “Нагорье-12” оснащен необходимыми для комфортной жизни центральным коммуникациями: газопровод, канализация, электричество, водопровод. Территория огорожена и осуществляется круглосуточная охрана. В поселке проведен оптоволоконный интернет.
Рядом протекает река Сходня, на берегах которой оборудована красивая прогулочная зона.
Поселок “Нагорье-12” граничит с пансионатом УПД Президента РФ "Новогорск", на территории которого есть оздоровительный комплекс и теннисные корты.
В непосредственной близости от поселка расположены:
- торгово - развлекательный комплекс "МЕГА-Химки" с множеством магазинов и супермаркетов, кафе и ресторанов, многозальным кинотеатром и катком;
- тренировочный фитнесс комплекс "Святовит" с бассейном и школой единоборств;
- банный комплекс "EVA СПА" с салоном красоты;
- тренировочный комплекс олимпийских сборных по фигурному катанию и художественной гимнастике "Новогорск", где работают детские секции.
Рядом расположен загородный ресторан Kalina Country с великолепной кухней, летней верандой с видом на реку. Для любителей верховой езды недалеко от комплекса есть конная база "Планерное", со школой верховой езды и пони клубом. В районе Куркино есть множество школ и детских садов а так же детских клубов для самых маленьких.
Удачное расположение поселка “Нагорье-12” позволяет комфортно и быстро добраться до международного аэропорта “Шереметьево”.
Мкр. Новогорск отличается благоприятной транспортной доступностью до Москвы. На общественном транспорте вы сможете доехать до ближайших станций метро Речной вокзал, Планерная и ж/д ст. Подрезково, Химки.

















































