Лот 37703.
Роскошный загородный особняк с классическим фасадом с эксклюзивным, современным и элегантным дизайном, с полноценным SPA c бассейном в элитном поселке "Резиденция Монолит.
Этот дом - редкое сочетание стиля и функциональности высокого уровня, где каждая деталь продумана до мелочей. Площадь всех строений 1110 м2: основной дом - 615 м2,
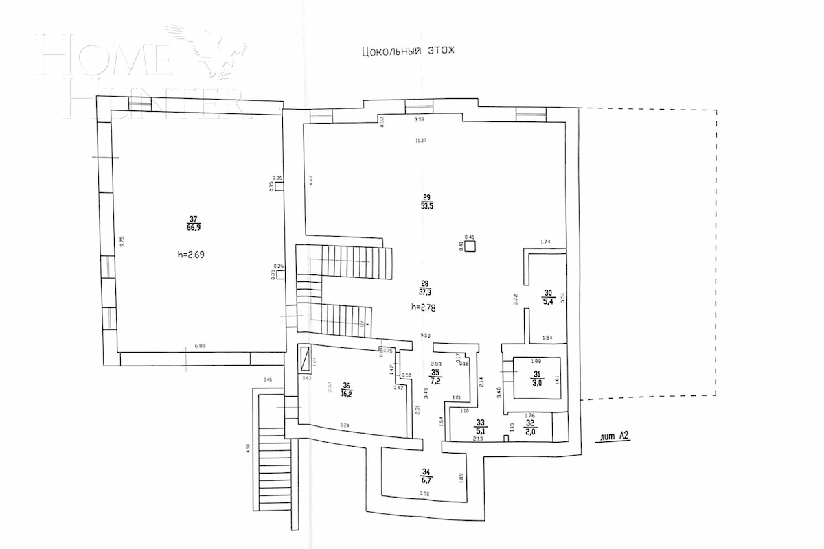
SPA комплекс c бассейном - 350 м2, веранда-барбекю(отапливаемая) - 60 м2. Участок 30 соток с красивейшим ландшафтным дизайном. Также в стоимость входит квартира для персонала с отделкой и мебелью в многоквартирном доме при посёлке.
Панорамные окна, высокие потолки и дверные проемы, светлые стены, великолепные предметы интерьера, освещение от Baccarat и Lalique создают комфорт и неповторимый уют загородной жизни. В доме есть гараж на 3 м/м, бойлерная. Также есть дополнительный генератор(на 13 кВт).
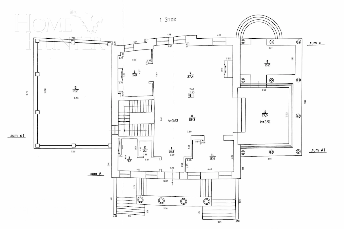
1 этаж: прихожая, гараж, гардеробная, санузел, холл, гостиная, кухня, столовая, терраса, кабинет
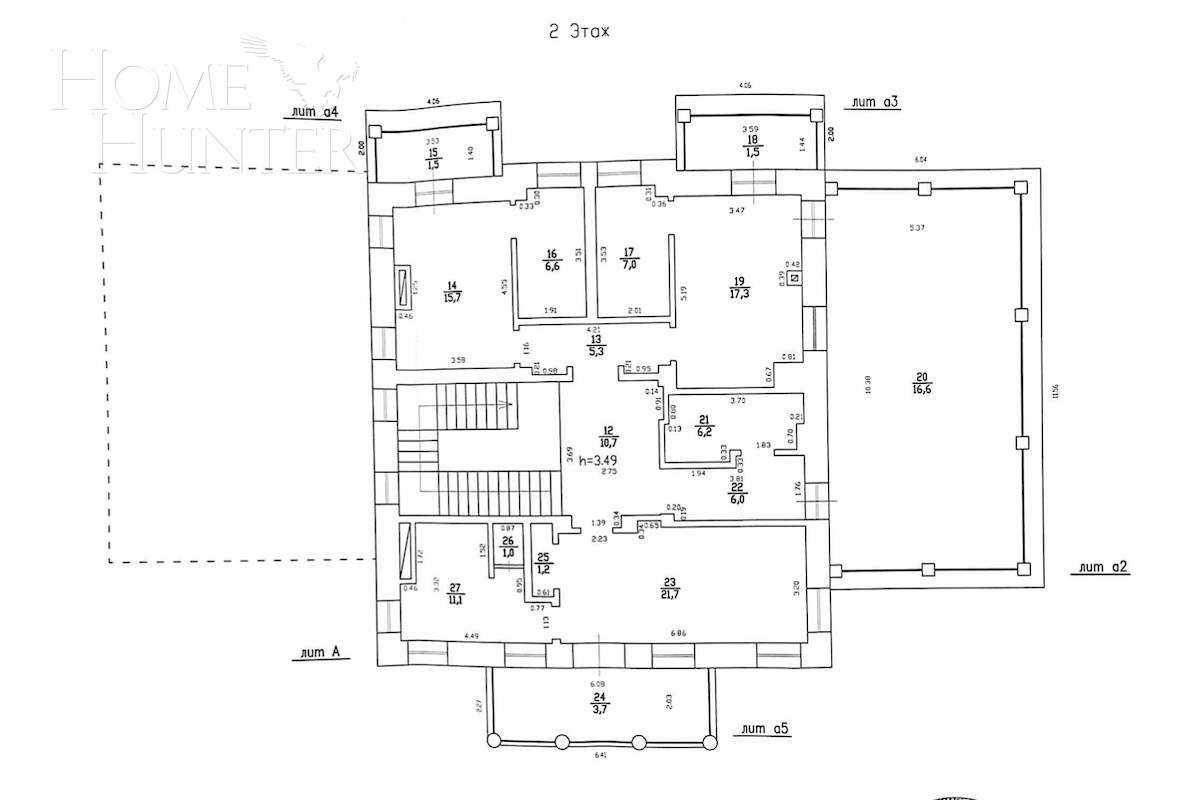
2 этаж: холл, мастер-спальня, ванная комната, гардеробная, спальня с гардеробной и санузлом - 2
Цоколь: кинотеатр, тренажерный зал, винный погреб, квартира для персонала, кладовая, постирочная
Коттеджный поселок «Резиденция Монолит» расположился в экологически чистом месте, на берегу живописного озера – в Истринском районе (21 км от МКАД по Новорижскому шоссе). На территории в 62 га разместились 128 домовладений со зданиями в неоклассическом стиле, напоминающими усадьбы XIX века. В центре поселка – озеро, берег которого украшает храм Сергия Радонежского. Вокруг водоема обустроены зоны отдыха и причал для катамаранов. Это место отлично подойдет любителям активного образа жизни благодаря большому современному комплексу с плавательным бассейном и тренажерами, теннисными кортами, русской бане, футбольному полю. Есть детские спортивные секции, элитная Ломоносовская школа. Также на территории ресторан, продуктовый магазин, кафе, услуги химчистки, парикмахерская-салон, приватная медицинская клиника и диагностический центр. В каждом коттедже установлена индивидуальная охранная сигнализация.
Роскошный загородный особняк с классическим фасадом с эксклюзивным, современным и элегантным дизайном, с полноценным SPA c бассейном в элитном поселке "Резиденция Монолит.
Этот дом - редкое сочетание стиля и функциональности высокого уровня, где каждая деталь продумана до мелочей. Площадь всех строений 1110 м2: основной дом - 615 м2,
SPA комплекс c бассейном - 350 м2, веранда-барбекю(отапливаемая) - 60 м2. Участок 30 соток с красивейшим ландшафтным дизайном. Также в стоимость входит квартира для персонала с отделкой и мебелью в многоквартирном доме при посёлке.
Панорамные окна, высокие потолки и дверные проемы, светлые стены, великолепные предметы интерьера, освещение от Baccarat и Lalique создают комфорт и неповторимый уют загородной жизни. В доме есть гараж на 3 м/м, бойлерная. Также есть дополнительный генератор(на 13 кВт).
Конструкция дома: монолит-кирпич
Материалы крыши: плоская крыша
Ремонт: под ключ с мебелью
Газ: магистральный
Электричество, кВт: 25
Канализация: центральная
Водоснабжение: центральное




























































