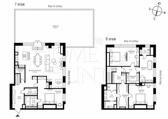
Представьте пространство, в котором каждый метр создан для того, чтобы дарить ощущение абсолютной свободы, света и городской элегантности. Шикарный двухуровневый пентхаус площадью 324.9 м² с грандиозной террасой 140 м² в клубном доме премиум-класса Turandot Residences — это не просто роскошь, это новый формат жизни в самом центре Москвы, где панорамы становятся частью интерьера, а дом — продолжением вашего статуса.
Преимущества Вашей будущей квартиры:
— Двухуровневое пространство 324.9 м² — ощущение частного дома над городом
— Грандиозная терраса 140 м² для лаунжа, сада, барбекю или летней кухни
— Потолки 3,3 м и панорамные окна — максимум света и ощущение воздуха
— Свободная планировка с возможностью создать интерьер по своему сценарию
— Премиальный клубный дом Turandot Residences — приватность, статус, исключительное соседство
— Виды на МИД РФ, город и купола Храма Христа Спасителя — редкая эстетика центра Москвы
— Идеальная функциональность: кабинет, мастер-суит, детская, постирочная и зоны хранения
О пентхаусе:
Расположенный на 7–8 этажах, этот объект без отделки — редкая возможность создать интерьер под себя, не идя на компромиссы. Потолки высотой 3,3 метра и панорамные окна наполняют пространство воздухом, а двухуровневая конфигурация формирует эффект частного дома над городом.
Терраса площадью 140 м² — ключевая ценность пентхауса: здесь можно устроить лаунж-зону с камином, летнюю кухню, барбекю-пространство или тихий сад над городом. Это место, где утро начинается с видов на столицу, а вечера — с ужинов под открытым небом.
Планировочные возможности позволяют реализовать функционал, соответствующий лучшей мировой практике проектирования. Вы можете создать:
— кухню-гостиную с выходом на террасу;
— приватный кабинет;
— мастер-суит со своим санузлом и гардеробной;
— детскую комнату;
— гостевой санузел;
— постирочную и продуманную систему хранения.
Такой набор функционала обеспечивает комфорт современной семьи и позволяет продумать каждый метр в соответствии с вашим ритмом жизни.
Виды и свет:
Окна ориентированы на две стороны света, что обеспечивает мягкое и равномерное освещение в течение дня. Из пентхауса открываются впечатляющие виды: архитектурная мощь здания МИД, исторические линии центра, купола Храма Христа Спасителя.
Клубный дом Turandot Residences:
Turandot Residences — это один из самых камерных и узнаваемых премиальных домов старой Москвы.
Идеальная локация в сердце столицы делает объект ещё более уникальным: рядом — театры, рестораны, набережные, патриархальная архитектура и лучшие культурные маршруты городского центра. Здесь всё — в шаговой доступности, но при этом в доме сохраняется ощущение клубности и тишины.
Этот пентхаус — редкая возможность получить пространство, которое станет вашим личным произведением архитектуры. Дом над городом, созданный для тех, кто выбирает жизнь на уровне.
Оперативный показ. Сотрудничаем с партнерами!
Компания "Винидиктов и Партнеры" - участник Ассоциации Агентств Элитной Недвижимости AREA
Арт. 130035898


































