ID: 588277
Продается дом 357 кв.м. на участке 10 соток в Горки 2 СНТ. 15 км. от МКАД по Рублево-Успенскому или Можайскому шоссе. Есть выезд на платную скоростную дорогу.
Высота потолков 1 этаж 3,2 м., 2 этаж 3,8 м.
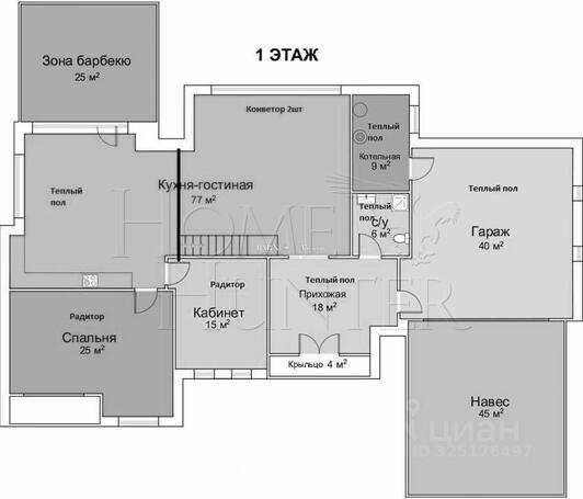
Планировка:
1 этаж: холл, гостиная, кухня-столовая с выходом на террасу с зоной для барбекю, спальня, кабинет, с/у, котельная, гараж на 2м/м, парковка под навесом;
2 этаж: мастер-спальня с гардеробной-постирочной, с/у и балконом, спальня с с/у и балконом, спальня с с/у, спальня/кабинет/игровая.
Коммуникации центральные.
На участке:
- Баня 50 кв.м (парная, комната отдыха, с/у);
- Детская площадка.
Участок ровный, правильной формы, с ландшафтными работами: газон, дорожки, освещение, декоративные насаждения.


































































