Арт. 119189809
Вашему вниманию представляется великолепный дом Под Ключ в коттеджном поселке Истра Вита!
Дом абсолютно новый.
Внутри выполнена хорошая качественная отделка, на первом этаже установлена вся необходимая мебель и бытовая техника.
Во всех помещениях установлено панорамное остекление, что увеличивает ощущение простора и делает их очень светлыми.
Дом построен по немецкой технологии строительства "фахверк", при это пирог стен усилен гидромембраной и металлическим гофролистом, за счет чего теплопроводность стен становится очень низкая, а издержки на поддержание необходимой температуры минимальными.
Дом построен на монолитной плите. Внутри установлена приточно-вытяжная вентиляция, что обеспечивает приток свежего воздуха во все помещения.
Все полы в доме теплые.
В котельной установлено газовое оборудование Viessmann, а также резервный электрический котел.
На участке выполнена планировка, сделан дренаж, засеян газон, высажены плодовые деревья, а посередине участка растет могучая липа, защищающая жителей дома своей тенью, в жаркий солнечный день.
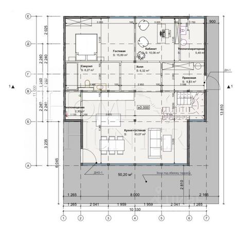
Планировка дома:
Первый этаж - прихожая, кабинет (гостевая спальня), спальня, санузел с душевой, гостиная-кухня-столовая с выходом на террасу, котельная.
Второй этаж - холл, три спальни, ванная комнат.
Коттеджный поселок Истра Вита.
Истра Вита - это небольшой клубный поселок, расположенный в 40км от МКАД по скоростному Новорижскому шоссе.
Поселок имеет благоустроенную и охраняемую территорию, на въезде организован контрольно-пропускной пункт, круглосуточно ведется патрулирование территории службой охраны. Все коммуникации в поселке Истра Вита центральные. (электричество, водопровод, канализация, газ).
Так же на территории поселка есть прогулочная зона с детской площадкой.
В непосредственной близости от поселка Истра Вита есть вся необходимая для комфортной жизни инфраструктура: магазины, рестораны, аптека, школа, спортивный клуб и многое другое.
Всего в 15 минутах от поселка расположен замечательный город Истра, с развитой инфраструктурой а также одной из самых главных Христианских достопримечательностей - Новоиерусалимским монастырем.
Если Вы хотите купить дом с отделкой на Новорижском шоссе, в окружении природы, но с близостью к хорошей инфраструктуре, то поселок Истра Вита, это именно то, что Вам нужно!



































































































