Арт. 129337611
Вашему вниманию представляется премиальный дом «под ключ» площадью 675 м2 на первой линии у леса и пруда на земельном участке в 16 соток в КП «Медвежье озеро», расположенный в 32 км от МКАД по Ярославскому шоссе.
На прилесном земельном участке расположены: Трехэтажный просторный функциональный дом со «вторым светом»; Теплый гараж на 2 машины + 2 машиноместа на улице; 2 открытые террасы;Летний сад;Банный комплекс с бассейном.
Технология строительства дома: Дом построен по технологии надежного монолитно-кирпичного домостроения (ж/б фундамент, перекрытия + поризованные блоки Porotherm) в 2013 году. Внешняя отделка — декоративная штукатурка «короед», крыша из высококачественной металлочерепицы (Южная Корея) на металлической стропильной системе;Инженерные системы производства Германии и Италии: 8 отдельных групп насосов (Grundfos), Котел (Baxi), бойлер (Baxi) , трубы (Protherm) и др.
Свет и комфорт в доме «под ключ»: Готовность к проживанию: Дом сдан «под ключ» с полной меблировкой. Ремонт выполнен в 2020–2021 годах, что позволяет сразу наслаждаться жизнью в новом пространстве.Простор и свет: Продуманная планировка включает 6 спален и 5 санузлов. Центр притяжения дома — гостиная со «вторым светом»: высота потолка в максимальной точке достигает 7,5 метров, а панорамное окно в пол открывает живописный вид на лес;Отделка и комфорт: Высота потолков на остальных уровнях составляет 3,05 м. На первом этаже и в цоколе реализована система «теплый пол». В общих зонах полы выполнены из износостойкого керамогранита, в жилых комнатах — из уютного ламината;Зоны отдыха и развлечений: В доме предусмотрено отдельное крыло под баню и бассейн (зона готова под чистовую отделку), а также в цокольном этаже спортивный/досуговый зал.Открытые пространства: Для любителей загородной жизни — две летние террасы с выходом из дома, а также два балкона: один с видом на живописный поселок, другой — на лес и пруд.
Коммуникации: Электричество: 25 кВт (центральное); Газ: магистральный; Канализация (септик); Водоснабжение (скважина).
Участок: 16 соток прямоугольной формы, соседи с двух сторон, есть ливневая система, расположен на окраине поселка возле леса, пруда, рекреационной зоны на участке высажен газон и дикий виноград, который играет роль "живой изгороди" в летнее время (возможно присоединить до 5 соток).
Юридическая часть: Один собственник (физическое лицо), срок владения более 5 лет. Никто не зарегистрирован. Объект готов юридически к сделке.
Ключевые преимущества: Уникальная локация в поселке. «Первая линия у прудов» и граница с лесом , отсутствие шумных соседей спереди и сзади, а также гарантированная сохранность видовых характеристик;Архитектурная выразительность и свет. Панорамное остекление и «второй свет» с высотой 7,5 м в гостиной. Такое решение создает ощущение простора, и выгодно отличает объект от других домов;Выгодное расположение коттеджного поселка. КП «Медвежье озеро» отличный вариант для спокойной загородной семейной жизни.
«Дом создан для большой семьи, где ценят статус, простор и панорамные виды. Идеальное решение для тех, кто ищет активную загородную жизнь в близком Подмосковье».
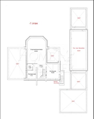
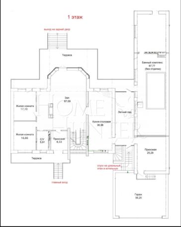
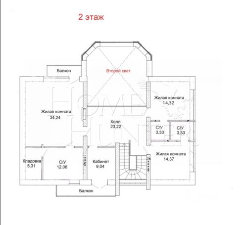
Планировка:
Цокольный этаж: холл, санузел, постирочная, свободное помещение, котельная с выходом на улицу;
Первый этаж: прихожая, санузел, 2 спальни, гостиная, кухня - столовая, летний сад, бассейн, прихожая, гараж;
Второй этаж: холл, спальня/кабинет с балконом, мастер спальня с балконом и санузлом, 2 спальни с санузлами.
КП «Медвежье озеро» — это закрытый и полностью сформированный коттеджный поселок для круглогодичного проживания, расположенный в экологически чистом районе в 32 км от МКАД по Ярославскому шоссе. Поселок отличается высокой степенью заселенности (99%), зрелой инфраструктурой и уникальным ландшафтом с двумя озерами в центре территории.
Природное окружение: Участок площадью 76 га со всех сторон окружен сосновым лесом, что обеспечивает приватность и защиту от ближайших населенных пунктов. В центре поселка, на площади около 2 га, расположены два небольших озера, соединенных между собой. Это создает уникальную рекреационную зону прямо внутри жилого пространства.
«Медвежье озеро» позиционируется как отличный вариант для спокойной загородной семейной жизни.
Инфраструктура поселка (Внутренняя)
Поселок полностью готов к комфортному проживанию и обеспечен всеми необходимыми сервисами:
- Безопасность : Круглосуточное патрулирование территории профессиональной охранной -службой, Два контрольно-пропускных пункта (КПП) на въезде, видеонаблюдение на КПП и ограждение по всему периметру.
- Обслуживание: Собственная сервисная служба для решения бытовых вопросов: Ремонтные работы, Уборка и клининг, Очистка дорог в зимний период, Вывоз мусора, Мониторинг состояния инженерных сетей.
- Благоустройство и отдых: Парковая зона в хвойном лесу, Прогулочные дорожки, Детская игровая и спортивная площадки, Зона отдыха на берегу озера.
- Социальные и коммерческие объекты: Здание администрации, Магазин на территории.
- Сообщество: Высокая степень заселенности (98%) — сформировано активное соседское сообщество, Регулярное проведение праздничных мероприятий по инициативе жителей.
Внешняя инфраструктура (в радиусе 10 минут езды)
В непосредственной близости от поселка находятся все необходимые объекты повседневного спроса: Продуктовые магазины: «Пятерочка», «Дикси»; Маркетплейс: пункт выдачи Ozon; Социальные учреждения: школа, детский сад; Медицина: аптека.
Более широкая инфраструктура (торговые центры, административные учреждения и т.д.) доступна в городах Пушкино и Красноармейск.





































































