Продаётся новый современный дом 450 кв.м. под отделку на участке 9,5 соток в КП Millennium
Park (Миллениум Парк). 24 км. от МКАД по Новорижскому шоссе.
Дом продаётся готовым под чистовую отделку, выложены перегородки, отшукатурены стены и откосы,
залита монолитная парящая лестница, сделана частично электрика к существующим электроприборам,
в котельной выложен керамогранит.
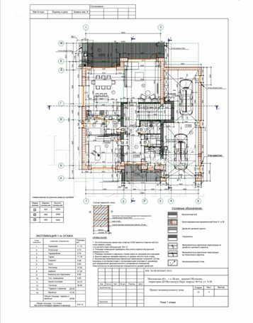
Планировка:
1 этаж: большая кухня-гостиная с выходом на терассу с камином, кабинет-гостевая спальня, парадный сан.узел, гардеробная, комната для персонала, вторая кухня, 2 просторных холла, котельная, большой гараж на 2 автомобиля и современую мужскую технику;
2 этаж: мастер-спальная с гардеробной и сан.узлом с выходом на собственную приватную терассу, две спальни со своими гардеробными и сан.узлами, в одной из комнат выход на собственную терассу, большая постирочная.
Коммуникации: ГАЗ магистральный, электричество 45кВт, вода центральная, скважина с Артезианской водой, центральная канализация, ливневая система центральная, высокоскоростной интернет.
Установлен генератор, зарядка для электромобиля, ip-домофония(въездные ворота, калитка и гаражные ворота открываются с приложения), видеонаблюдение, интернет заведен и подключен, освещение дома, подогрев терасс и всей вьездной группы.
Участок ровный, правильной прямоугольной формы, с ландшафтным дизайном: газон, дорожки, декоративные насаждения.


































