Продается загородная резиденция Villa Lake на участке 40,8 соток в КП Никольская слобода. 9 км. от МКАД по Новорижскому шоссе.
Собственный выход к озеру!
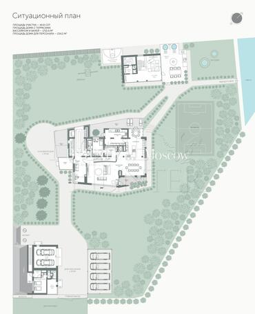
Общая площадь дома с бассейном и террасами 1710,6 кв.м. 2 этажа и цоколь. Лифт. Дизайнерская отделка с использованием натуральных материалов. Комплектация брендовой мебелью.
5 спален, 6 с/у, дровяной и био камины, библиотека, тренажерный зал, SPA с бассейном, банный комплекс 615,9 кв.м., купель, 2 открытые террасы, профессиональная кухня, футбольное поле, теплый гараж, гостевая парковка, автомойка, дом персонала 207,7 кв.м.
ВИДЕОНАБЛЮДЕНИЕ: Система видеонаблюдения на базе программного обеспечения производителя Trassir с возможностью наращивания количества видеоточек и интеллектуальной видеоаналитикой.
СИСТЕМА КОНТРОЛЯ ДОСТУПА: Управление доступом от Hikvision.
ВЕНТИЛЯЦИЯ И КЛИМАТ: Приточно-вытяжная вентиляция с сезонным подогревом и охлаждением; климатическая система от Mitsubishi Electric.
ТЕХНИЧЕСКИЕ ПОКАЗАТЕЛИ: Газ, Электричество — 22 кВт, Канализация — центральная, Вода — центральная.
Участок ровный, с ландшафтными работами: газон, дорожки, освещение, декоративные насаждения.















































