Современный, качественно построенный дом площадью 472 кв.м. на участке с лесными деревьями 25 соток в окружении хвойного леса.
Актуальное архитектурное решение с идеальными пропорциями, панорамное остекление, видовые террасы, открытые помещения с естественным освещением – все создано для максимально комфортного проживания будущих хозяев.
Коттедж предлагается под отделку и расположен в поселке академиков РАН Мозжинка, в одном из самых живописных мест Подмосковья.
Конструктив:
Дом построен из газобетонных блоков высокой плотности
Фундамент - монолит с качественным утеплением и гидроизоляцией.
Фасад облицован керамогранитом, натуральным деревом и декоративным клинкерным камнем ручной формовки.
Крыша - полимерная кровельная мембрана LOGICROOF V-GR.
Перекрытия монолитная железобетонная плита.
Высота потолков в черновой отделке 3,5 м
Оборудована бойлерная, установлен итальянский котел Baxi, по всем помещениям разведены системы отопления.
Большая площадь панорамного остекления. Установлены двухкамерные стеклопакеты.
Проведен оптоволоконный интернет.
Выполнена отмостка и установлены водосточные системы.
Есть Рабочий проект, который включает в себя генеральный план и архитектурно-планировочное решение. По всем этапам строительства велась фото и видео съемка. Застройщик готов выполнить качественную отделку под ключ будущему покупателю.
Коммуникации:
Все коммуникации заведены в дом:
магистральный газ
электричество 15 кВт.
вода (скважина 160 метров)
канализация (установлен аэрационный септик Вита Лайт 6+).
Описание дома:
В доме продуманная планировка с эффективно разграниченным личным и общественным пространством. Кухня-гостиная с центральным камином и выходом на большую крытую веранду. Рядом с кухней предусмотрено помещение кладовой для хранения и установки дополнительного оборудования. 4 мастер – спальни со своими ванными комнатами и гардеробными, одна из которых расположена на первом этаже. Для удобного приема деловых партнеров или проведения переговоров, помещение кабинета расположено в зоне входного холла. На втором этаже свой выход на огромную панорамную террасу с живописными видами на лес.
В контуре дома построена крытая парковка на 2 автомобиля с хозяйственным блоком.
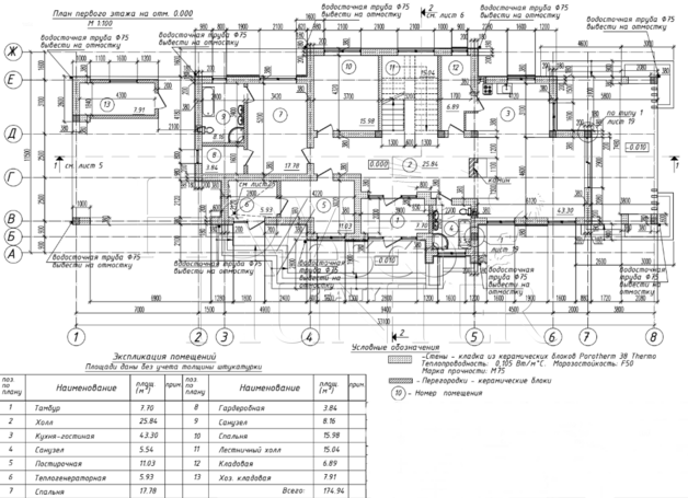
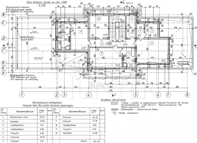
Планировки:
1 этаж: кухня-гостиная 43,3 кв.м., кладовая при кухне 6,89 кв.м., спальня 17,8 кв.м. со своим с/узлом 8,16 кв.м. и гардеробной 3,84 кв.м., кабинет 15,98 кв.м., гостевой с/узел 5,54 кв.м., парадный холл 25,84 кв.м., гардеробная 4,93 кв.м., гардеробная 3,67 кв.м., прихожая7,7 кв.м., постирочная 11,03 кв.м., бойлерная 5,93 кв.м., крытая парковка на 2 автомобиля с хозяйственной кладовой 7,91 кв.м.
2 этаж: мастер блок - спальня 28,15 кв.м., ванная комната 6,8 кв.м., гардеробная 3,86 кв.м., спальня 24,32 кв.м., ванная комната 9,12 кв.м., спальня 17,78 кв.м., ванная комната 8,16 кв.м., гардеробная 3,84 кв.м., дополнительная гардеробная 7,61 кв.м., детская игровая комната 15,98 кв.м., открытая терраса.
Описание участка:
Ровный, солнечный участок с лесными деревьями площадью 25 соток. На участке сделан дренаж. Въездная парковочная зона на 4 автомобиля подготовлена для мощения брусчаткой. По периметру участка установлено ограждение.
Садово-парковый дизайн участка может быть оформлен с учётом окружающего хвойного леса с добавлением элементов уникального природного ландшафта.
Площадь участка позволяет построить отдельный SPA комплекс и расположить дополнительные зоны для отдыха.
Описание поселка:
Поселок академических дач Мозжинка расположен в самом сердце реликтового соснового бора на 29 км от МКАД по Ильинскому шоссе. Он уникален своей богатой историей и неповторимой атмосферой. Вековые сосны, свежий воздух, тишина и достойное окружение потомков великих советских ученых.
Место для поселка выбрал академик Сергей Вавилов, а генеральный план поселка был создан знаменитым советским архитектором Алексеем Щусевым. В поселке есть великолепное здание в стиле сталинского ампира - Дом ученых, построенное в 1955 году. В пешей доступности расположена Москва река и облагороженный природный парк с прогулочными зонами. На территории природного парка возводится банный комплекс с мини рестораном. КПП на въезде в поселок, строго охраняемая территория. Заезд в поселок осуществляется с Ильинского шоссе.
Инфраструктура:
В 3-х минутах на машине распложена вся инфраструктура г. Звенигород: сетевые супермаркеты, магазины, рестораны, аптеки, салоны красоты, медицинские центры, больницы и школы. В5 минутах на автомобиле расположен Звенигородский государственный музей-заповедник, где регулярно проходят выставки мирового уровня. Также в 5 минутах на автомобиле в дер. Липки расположена 1-ая Московская Гимназия. В 7 минутах на автомобиле находится старинный Саввино-Сторожевский мужской Монастырь, куда приезжают паломники со всей страны. Удобный выезд на все три трассы – Ильинское, Рублево-Успенское и Новорижское шоссе.
Участник AREA - Ассоциации Агентств Элитной Недвижимости



































