№200817 Павлово Village
Предлагается коттедж 348 кв.м. на участке 13,86 соток в охраняемом поселке Павлово Village. Мини-поселок с беспрепятственным доступом к территории КП "Павлово-2".
В доме 2 уровня, панорамное остекление, 4 спальни с с/у, просторная гостиная с выходом на террасу. Материал стен – крупноформатный керамический блок.
Коммуникации центральные: электричество - 16 кВт, КНС, водоснабжение, газ
Дом предлагается с отделкой. Срок полной готовности - сентябрь 2026 г.
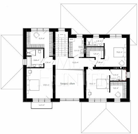
Планировка дома:
1 этаж: прихожая, гардероб, гараж на 2 м/м, котельная, с/у, гостевая спальня с с/у и гардеробной, кабинет, гостиная со вторым светом, кухня, столовая.
2 этаж: холл, 2 спальни с гардеробными, с/у, мастер-спальня с с/у и гардеробной.


































